Te koop Huis

Beschrijving van   

Vergelijk realty's

Te koop Huis

Huis Huis Huis Huis Huis Huis Huis Huis Huis Huis Huis Huis Huis Huis Huis Huis Huis Huis Huis Huis Huis Huis Huis Huis Huis Huis Huis
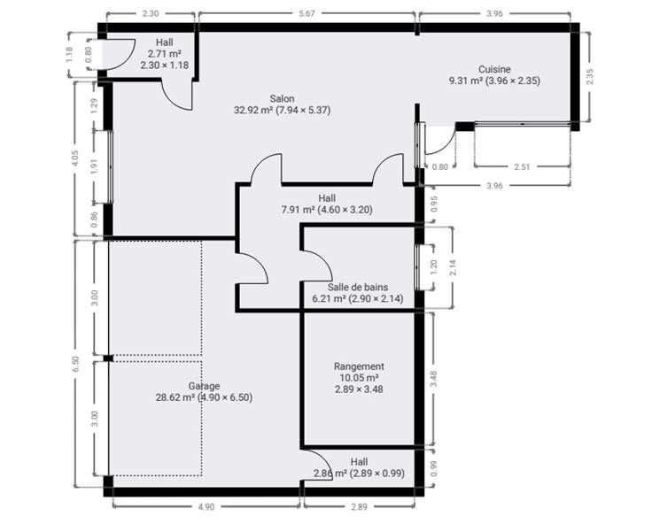
Sorry er is geen nederlandse vertaling beschikbaar. Century 21 iris-concept vous propose une grande maison à vendre à Courcelles. La maison est composée au rez-de-chaussée d'un hall d'entrée, un grand espace de vie donnant sur la cuisine, un wc séparé, un espace de rangement ainsi que deux garages. Au 1er étage vous disposez de 4 belles chambres dont une avec un dressing. Grenier aménageable, terrasse, jardin bien exposé, châssis en double vitrage en bois, chauffage au gaz. Faire offre à partir de 275 000€ (sous réserve d'acceptation des propriétaires) Infos et visites au 071/96.03.67 ou sur info@century21iris-concept.be
Type vastgoed Huis
Prijs 275.000
Bewoonbare opp. 195
Aantal slaapkamers 5