Te koop ZÉÉR RUIM DUPLEXAPPARTEMENT - RESIDENTIE C...

Beschrijving van   

Vergelijk realty's

Te koop ZÉÉR RUIM DUPLEXAPPARTEMENT - RESIDENTIE CHALET D'ASSCHE

ZÉÉR RUIM DUPLEXAPPARTEMENT - RESIDENTIE CHALET D'ASSCHE ZÉÉR RUIM DUPLEXAPPARTEMENT - RESIDENTIE CHALET D'ASSCHE ZÉÉR RUIM DUPLEXAPPARTEMENT - RESIDENTIE CHALET D'ASSCHE
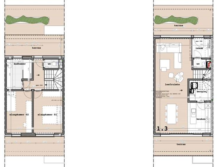
Op een steenworp van Asse centrum verrijst binnenkort de prachtige nieuwbouw residentie ''CHALET D'ASSCHE''. Dit gloednieuw bouwproject ontleent zijn naam en inspiratie aan het voormalige betoverende hotel-restaurant Chalet d'Assche, een prachtig gebouw doordrenkt van nostalgie uit een vervlogen tijdperk. Het bouwproject bestaat uit 14 appartementen waaronder 7 gelijkvloerse appartementen (bew. opp. van 77,15m2 tot 97,00m2), 2 hoekappartementen (bew. opp. van 88,25m2 en 97,02m2) en 5 duplex appartementen (bew. van 102,88m2 tot 110,15m2). Alle appartementen beschikken over 2 slaapkamers (enkel appt. 0.1 betreft een 1-slpk appartement) en ruime terrassen. ➔ Dit betreft APPARTEMENT 1.3: bewoonbare oppervlakte 108,20 m2 (2 slaapkamers) & 3 terrassen met totaal van 34,22 m2 Per appartement wordt een handelswaarde voorzien voor badkamer/ sanitaire toestellen (5.075€ incl. BTW en plaatsing), alsook voor de vloerbedekking (30.00€/m2 excl. BTW). Voor de keuken is er door interieur LIN een ontwerp op maat uitgetekend, volgens een vooropgesteld budget cfr. lastenboek (keuken : TYPE 2), detailofferte hieromtrent ook beschikbaar. Ondergrondse staanplaatsen beschikbaar vanaf 24.000 EUR (excl. BTW & registratierechten), kelderbergingen eveneens beschikbaar vanaf 4.750 EUR (excl. BTW & registratierechten). BEN voordeel: verwarming o.b.v. geothermieverwarming (= verwarmen vanuit diepteboringen), vloerverwarming, vloerkoeling in de zomer, zonnepanelen, warmtepomp in de kelder, geen aansl
Type vastgoed Appartement
Prijs 359.900
Bewoonbare opp. 108
Aantal slaapkamers 2
Aantal badkamers 1