Te koop Appartement

Beschrijving van   

Vergelijk realty's

Te koop Appartement

Appartement Appartement Appartement
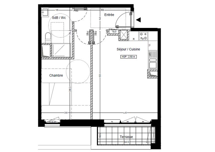
Dans le quartier du Bourg, vous serez séduit par cet appartement de 46,26 m2 offrant confort et belles prestation au 3eme et dernier étage d'une résidence de 36 appartements. Le hall d'entrée s'ouvre sur un séjour de 22 m2 avec sa cuisine entièrement équipée et un balcon de 4 m2, exposé Nord-Est. L'appartement offre également une grande chambre de plus de 13 m2 et une salle de douche avec meube lavabo simple vasque, radiateur sèche-serviette et WC suspendu. Au sol, on trouve un véritable parquet contre-collé dans les pièces de vie et du carrelage dans la cuisine et la salle de douche. Chauffage électrique individuel, production d'eau chaude sanitaire collective et volets roulants électriques dans toutes les pièces. Parking en sous-sol et local à vélo. Disponible au dernier trimestre 2024. Non soumis au DPE Photos non contractuelles Prix de vente : 259900 euros H.A.I. (charges vendeur) Pour vous accompagner dans votre projet, contactez Marie-Hélène CILLUFFO, au 0785135740 ou par courriel à mh.cilluffo@proprietes-privees.com Selon l'article L.561.5 du Code Monétaire et Financier, pour l'organisation de la visite, la présentation d'une pièce d'identité vous sera demandée. Cette vente est garantie 12 mois. Cette présente annonce a été rédigée sous la responsabilité éditoriale de Marie-Hélène CILLUFFO agissant sous le statut d'agent commercial immatriculé au RSAC LILLE 539029264 auprès de la SAS PROPRIETES PRIVEES, au capital de 40 000 euros, ZAC LE CHÊNE FERRÉ
Type vastgoed Appartement
Prijs 259.900
Bewoonbare opp. 46
Aantal slaapkamers 1