Te koop Te koop in Assenede woonhuis met tuin & ga...

Beschrijving van   

Vergelijk realty's

Te koop Te koop in Assenede woonhuis met tuin & garage

Te koop in Assenede woonhuis met tuin & garage Te koop in Assenede woonhuis met tuin & garage Te koop in Assenede woonhuis met tuin & garage Te koop in Assenede woonhuis met tuin & garage Te koop in Assenede woonhuis met tuin & garage Te koop in Assenede woonhuis met tuin & garage Te koop in Assenede woonhuis met tuin & garage Te koop in Assenede woonhuis met tuin & garage Te koop in Assenede woonhuis met tuin & garage
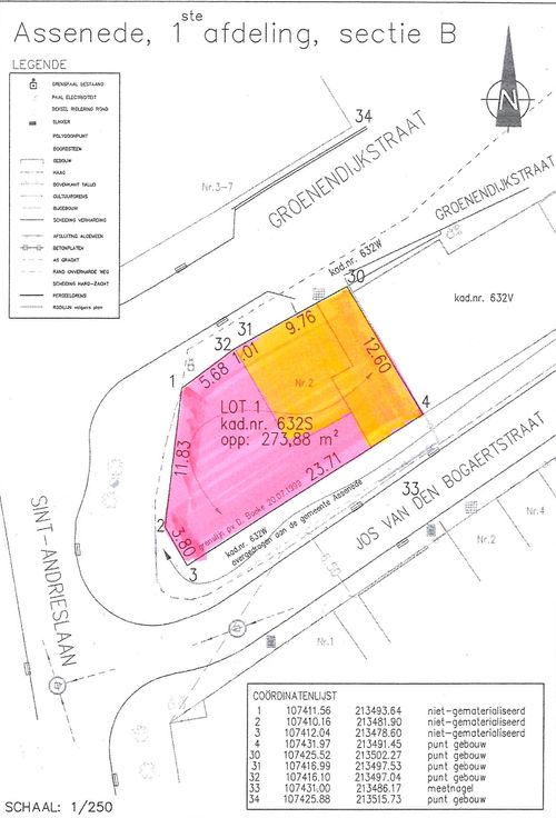
Te koop in Assenede woonhuis met tuin & garage Een half openbebouwing met 2 slaapkamers en dressing Ruime living Keuken uitgevend op tuin Berging Badkamer met ligbed Koer Garage Mooi gelegen voortuin met oprit naar garage Geschikt om te renoveren Oppervlakte 273 m2 Interesse? Contact 0495/30.19.50
Type vastgoed Huis
Prijs 182.500
Aantal slaapkamers 2
Aantal badkamers 1