Te koop Nieuwbouwwoning met tuin te Sint-Gillis-bi...

Beschrijving van   

Vergelijk realty's

Te koop Nieuwbouwwoning met tuin te Sint-Gillis-bij-Dendermonde!

Nieuwbouwwoning met tuin te Sint-Gillis-bij-Dendermonde! Nieuwbouwwoning met tuin te Sint-Gillis-bij-Dendermonde! Nieuwbouwwoning met tuin te Sint-Gillis-bij-Dendermonde!
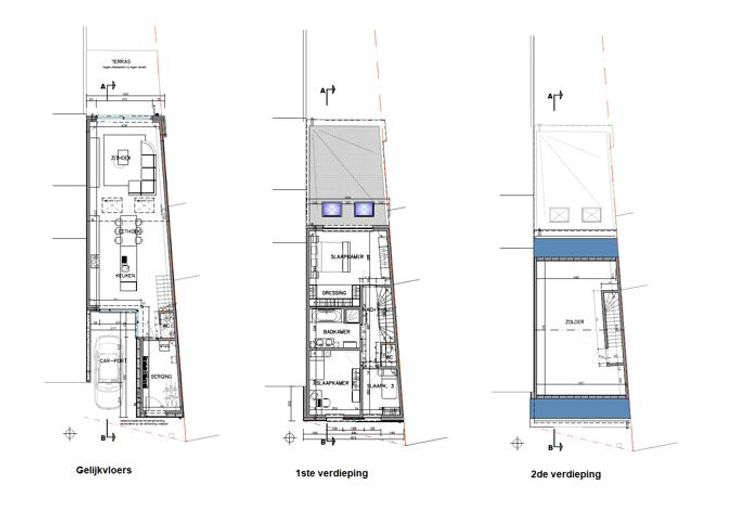
Nieuw te bouwen woning met 3 slaapkamers en tuin in Sint-Gillis-bij-Dendermonde! Deze hoogwaardige nieuwbouwwoning ligt op een ideale locatie nabij scholen, winkels en openbaar vervoer. De woning is een gesloten bebouwing en wordt gebouwd met kwaliteitsmaterialen. De vloerverwarming met warmtepomp en het ventilatiesysteem zijn grote troeven, omdat ze zorgen voor een comfortabel binnenklimaat en een uitstekende energiescore (EPB-wetgeving). Het gelijkvloers omvat een lichte leefruimte met een volledig geïnstalleerde open keuken, een apart gastentoilet en een bergruimte. Op de eerste verdieping zijn er 3 slaapkamers, waarvan één met dressing, een apart toilet en een badkamer met ligbad, douche en dubbele lavabo. De zolder, toegankelijk via een vaste trap, biedt extra bergruimte en kan dienen als extra slaapkamer(s). Parkeren is geen enkel probleem dankzij de carport. Verkoop onder BTW-stelsel. Wilt u meer informatie of een bezoek inplannen? Neem contact op met Tijl via tijl@immotijl.be of op het nummer 0477 44 86 11.
Type vastgoed Huis
Prijs 329.000
Bewoonbare opp. 160
Aantal slaapkamers 3
Aantal badkamers 1