Te huur Opslagplaats met kantoren in Turnhout

Beschrijving van   

Vergelijk realty's

Te huur Opslagplaats met kantoren in Turnhout

Opslagplaats met kantoren in Turnhout Opslagplaats met kantoren in Turnhout Opslagplaats met kantoren in Turnhout Opslagplaats met kantoren in Turnhout Opslagplaats met kantoren in Turnhout Opslagplaats met kantoren in Turnhout Opslagplaats met kantoren in Turnhout Opslagplaats met kantoren in Turnhout Opslagplaats met kantoren in Turnhout Opslagplaats met kantoren in Turnhout Opslagplaats met kantoren in Turnhout Opslagplaats met kantoren in Turnhout Opslagplaats met kantoren in Turnhout Opslagplaats met kantoren in Turnhout
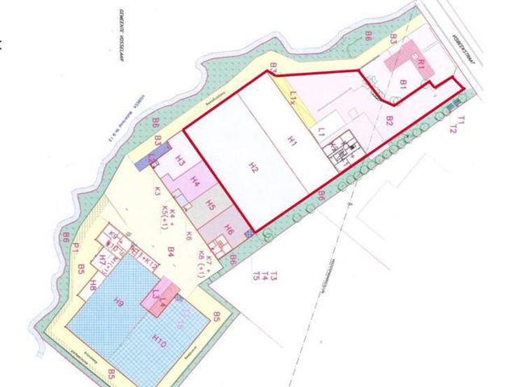
Prachtig magazijn met kantoren in een mooi bedrijvencomplex, op 2 minuten van de op- en afrit 23 (Turnhout-West) van de E34. Beschikbaar vanaf 1/06/2024.
Type vastgoed Commercieel
Prijs 17.567
Bewoonbare opp. 4216