Te koop Appartement

Beschrijving van   

Vergelijk realty's

Te koop Appartement

Appartement Appartement Appartement Appartement Appartement
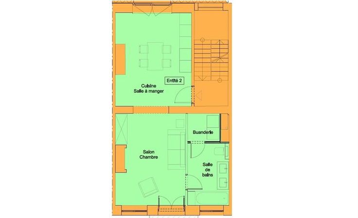
Colignon wijk In een volledig gerenoveerd Brussels huis biedt JS Properties een studio van ± 55m² met een woonkamer, een ingerichte keuken, een badkamer met wc en een wasruimte. Individuele condensatieketel op gas, efficiënte dubbele beglazing, ventilatiesysteem, conforme elektrische installatie, EPB in uitvoering. Info en bezoeken 02 / 538.02.58 of www.jsproperties.be
Type vastgoed Appartement
Prijs Op aanvraag
Bewoonbare opp. 55
Aantal slaapkamers 1
Aantal badkamers 1