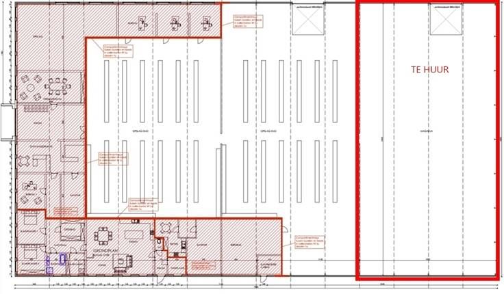
Te huur Magazijn met verhard buitenterrein

Beschrijving van   

Vergelijk realty's

Te huur Magazijn met verhard buitenterrein

Magazijn met verhard buitenterrein Magazijn met verhard buitenterrein Magazijn met verhard buitenterrein Magazijn met verhard buitenterrein Magazijn met verhard buitenterrein Magazijn met verhard buitenterrein Magazijn met verhard buitenterrein Magazijn met verhard buitenterrein
Magazijn met verhard buitenterrein in Wetteren. Gunstig gelegen op slechts 1,5 km van de Brusselsesteenweg, 4 km van de E40 (op- en afrit Wetteren), 5 km van de R4 Gent en ca. 10 km van de autosnelweg E17 Gent-Antwerpen. Het magazijn is voorzien van voldoende natuurlijke lichtinval, 3-fasige stroom en heeft een vrije hoogte van ca. 4,5 meter. Neem contact op voor meer informatie of een bezoek ter plaatse.
Type vastgoed Commercieel
Prijs 3.300
Bewoonbare opp. 800