Te koop Appartementsblok

Beschrijving van   

Vergelijk realty's

Te koop Appartementsblok

Appartementsblok Appartementsblok Appartementsblok Appartementsblok Appartementsblok Appartementsblok Appartementsblok Appartementsblok Appartementsblok Appartementsblok Appartementsblok Appartementsblok
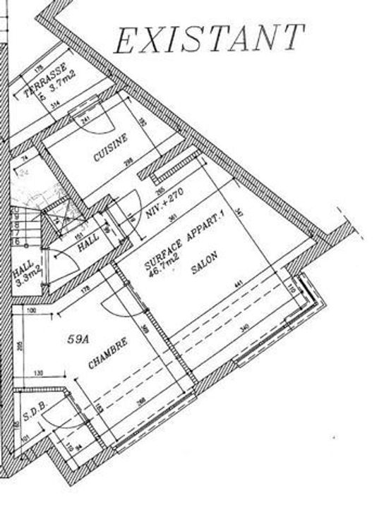
Le bureau YAKimmo vous propose; Un superbe immeuble de rapport idéalement situé à Manage et proches de toutes commodités (transports en communs, commerces, écoles, axes autoroutiers,...) - Avis aux INVESTISSEURS ! Celui-ci se compose comme suit :  Au rez-de-chaussée : un hall d'entrée commun et deux garages de +/- 20m² chacun. Les 3 appartements sont composés d'un séjour de +/- 13m², une cuisine, une chambre de +- 10 m², une salle de douches avec lavabo, douche et w.c et une terrasse de +-4 m². Actuellement loué à :  Garages : 75€/garage Apparts du 1er et du 3ème sont loués 500€/mois et 510€/mois. L'appartement du 2ème est vide. Pas de charges communes, chaque locataire entretient son palier et sa volée d'escalier.  Infos techniques : Poêle au gaz dans chaque appartement, compteurs individuels pour chaque appartement, raccordé au égouts, châssis double vitrage PVC. Peb 1er étage : F (447 kWh/m².an) Peb 2ème étage : C (250 kWh/m².an) Peb 3ème étage : G (574 kWh/m².an) Prix indicatif : 310.000,-€ (sous réserve de l'accord des propriétaires). Pour toutes informations ou une évaluation offerte de votre bien 0470/10.47.79 - 02 355 17 51.  https://www.yakimmo.be/vendre/#estimation  Rejoignez nous sur https://www.facebook.com/yakimmorealestate/ Le bureau YAKimmo, le bureau idéal pour vendre, acheter, louer ou gérer vos biens !
Type vastgoed Huis
Prijs 310.000
Bewoonbare opp. 180
Aantal slaapkamers 3
Aantal badkamers 3