Te koop Huis

Beschrijving van   

Vergelijk realty's

Te koop Huis

Huis Huis Huis Huis Huis Huis Huis Huis Huis
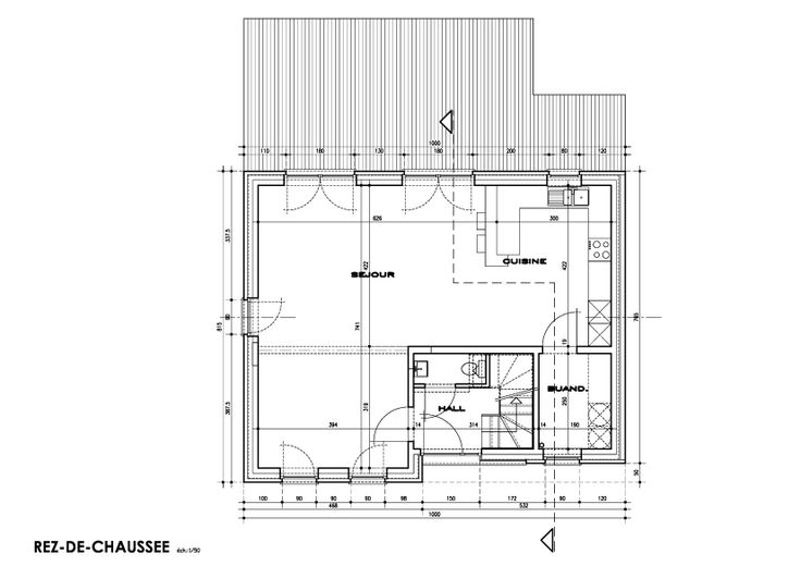
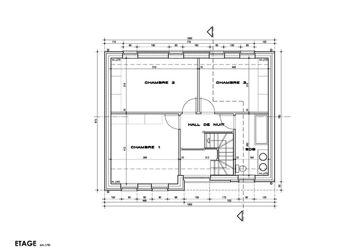
Contact : Monsieur Mariani (IPI 103.174) au 0475/23.62.76. C'est la très belle région du Condroz, et plus précisément à Terwagne, que Maisons Compère, vous propose un beau terrain à bâtir d'une superficie de 1.966 m². Il bénéficie de 40 mètres de façade dans un cadre verdoyant. Situé au cœur du village, vous aurez la chance de profiter pleinement du calme qu'y règne en ce lieu. Il se trouve à mi-chemin entre Namur et Liège (30 minutes) mais également proche de la N63 afin de rejoindre la ville de Huy. Nous vous proposons un terrain avec un projet de construction 4 façades, se composant comme suit : Au rez-de-chaussée, vous retrouverez un hall d'entrée avec un accès à un WC, à un séjour lumineux, à une grande cuisine ouverte ainsi qu'à une buanderie. Un hall de nuit se trouvant à l'étage, vous donnera accès à 3 chambres ainsi qu'à une salle de bain. Ce projet est entièrement modulable et personnalisable en fonction de vos envies et de vos désirs. Prix du terrain + projet de construction : 254.232,00 € HTVA et frais d'architecte.** *Image non contractuelle. **Le prix est à titre indicatif et peut être modifié à la suite de la personnalisation du projet. Monsieur Mariani (IPI 103.174) reste disponible au 0475/23.62.76 pour des renseignements complémentaires.
Type vastgoed Huis
Prijs 254.232
Aantal slaapkamers 3
Aantal badkamers 1