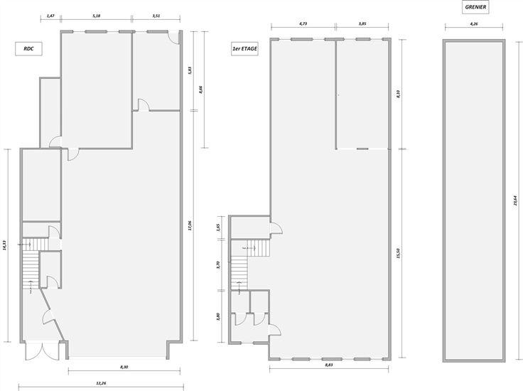
Dit aantrekkelijke pand is ideaal gelegen in het stadscentrum, in het hart van een druk commercieel gebied, en biedt een groot aantal verbouwingsmogelijkheden en gemakkelijk parkeren. Twee ruimtes van 225m² elk, op de begane grond en 1e verdieping, plus een zolder van 95m², geven je een idee van de grootte. Met aantrekkelijke huurrendementen en de mogelijkheid tot conversie is het ideaal voor investeerders die op zoek zijn naar een hoge zichtbaarheid!!!FO 499.000,00€ ss rés. d'accept. ds prop. .