Te koop Bouwgrond

Beschrijving van   

Vergelijk realty's

Te koop Bouwgrond

Bouwgrond Bouwgrond Bouwgrond Bouwgrond Bouwgrond Bouwgrond Bouwgrond
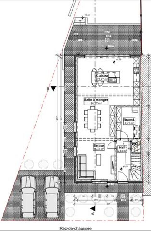
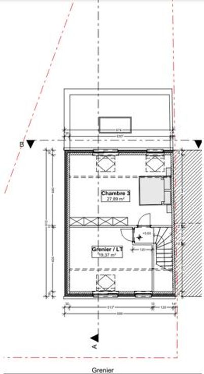
L’agence immobilière STRAZZERI’MMO a le plaisir de vous présenter ce terrain à batir à Trazegnies avec permis d’urbanisme octroyé pour la construction d’une maison 3 façades comprenant 3 ch, parking, terrasse et jardin. Idéalement situé et proche de toutes les facilités (transports, commerces, écoles,..). Accès direct et rapide aux accès autoroutiers. +/- 14m de façade. Le permis délivré a pour objet la construction d’une maison unifamiliale composée comme suit : rez-de-chaussée : hall d’entrée avec WC séparé, buanderie, séjour (15m2) et salle à manger (20m2) ouverte sur cuisine (23m2) avec baie vitrée. Etage : hall de nuit vers 2 chambres (15 et 17m2) et salle de bain (9m2). Combles : chambre 3 (28m2) et grenier (19m2). Extérieur : parking, terrasse et jardinet. Plans et dossier complet disponibles sur demande. Prix : FAIRE OFFRE > 59.000 EUR, sous réserve d’acceptation des propriétaires. Descriptif à titre informatif et non contractuel.
Type vastgoed Grond
Prijs 59.000