Te koop Maison unifamiliale

Beschrijving van   

Vergelijk realty's

Te koop Maison unifamiliale

Maison unifamiliale Maison unifamiliale Maison unifamiliale Maison unifamiliale Maison unifamiliale Maison unifamiliale Maison unifamiliale Maison unifamiliale Maison unifamiliale Maison unifamiliale Maison unifamiliale Maison unifamiliale Maison unifamiliale Maison unifamiliale Maison unifamiliale Maison unifamiliale Maison unifamiliale Maison unifamiliale Maison unifamiliale Maison unifamiliale Maison unifamiliale Maison unifamiliale Maison unifamiliale Maison unifamiliale Maison unifamiliale
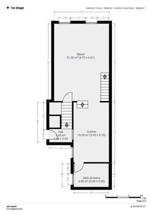
Charmante maison unifamiliale composée comme suit : Concernant la première partie du bien ; on y retrouve la pièce de vie avec cuisine ouverte (27m2) , un W-C, un hall avec accès vers le bureau (6m2) et la chambre à coucher (10m2) donnant sur une salle de bain. Ensuite, pour la seconde partie ; On y trouve un hall (6m2) avec un placard, à l'étage se trouve un séjour avec salle à manger (30m2) et une cuisine équipée (15m2) donnant accès à la salle de bain (6m2), au 2ème étage, un hall menant à 1 chambre (8m2) et la chambre parental (17m2).
Type vastgoed Huis
Prijs 220.000
Bewoonbare opp. 143
Aantal slaapkamers 3
Aantal badkamers 2