Te koop Te renoveren duplex appartement

Beschrijving van   

Vergelijk realty's

Te koop Te renoveren duplex appartement

Te renoveren duplex appartement Te renoveren duplex appartement Te renoveren duplex appartement Te renoveren duplex appartement Te renoveren duplex appartement Te renoveren duplex appartement Te renoveren duplex appartement Te renoveren duplex appartement Te renoveren duplex appartement Te renoveren duplex appartement Te renoveren duplex appartement Te renoveren duplex appartement
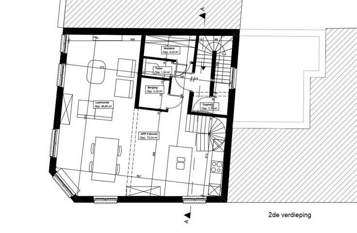
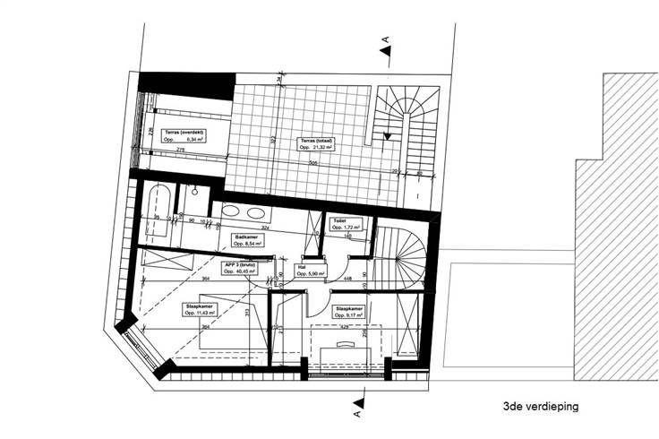
Te renoveren duplex met vergunning Een hoekpand dat je nog helemaal kunt omvormen naar wens, vergunning aanwezig om een extra verdiep bij te bouwen. Je hebt hier heel wat opties én na renovatiewerken een luxe duplex op top locatie! Op de hoek van de Prins Leopoldstraat met de Oudstrijdersstraat vind je dit ruime, lichte hoekpand, mét zicht op het mooie heraangelegde Montgomerypleintje net voor de deur. Het betreft een volledige renovatie waarbij je de goedgekeurde vergunning reeds in handen hebt. Hier kan middels een op top, een duplex appartement van maar liefst +/- 112m² gecreëerd worden. Het ruime dakterras van maar liefst 27m² is toegankelijk via de gemeenschappelijke hal. Je hebt hier dus de mogelijkheid om een duplex appartement te maken met op verdieping 2: een ruime leefruimte met open keuken en veel lichtinval, handige berging , ingebouwde vestiaire en gasten toilet. Via de privatieve trap kom je op de derde verdieping die je volgens vergunning nog kan bijbouwen. Hier maak je dan gloednieuw: 2 volwaardige slaapkamers, een badkamer en toilet. De afwerking bepaal je helemaal zelf. Goed om te weten: elke nieuwe eigenaar moet op basis van zijn aandeel in de basisakte bijdragen aan de kosten van de verbouwing van dak en achtergevel, onderling te verdelen tussen 3 eigenaars. Dan heb je ook meteen een energie zuiniger pand dat klaar is voor de toekomst! Voor meer info: https://www.immovasta.be/panden/gegevens/13244/
Type vastgoed Huis
Prijs 185.000
Bewoonbare opp. 112
Aantal slaapkamers 2
Aantal badkamers 1