Te koop Te renoveren gelijkvloersappartement

Beschrijving van   

Vergelijk realty's

Te koop Te renoveren gelijkvloersappartement

Te renoveren gelijkvloersappartement Te renoveren gelijkvloersappartement Te renoveren gelijkvloersappartement Te renoveren gelijkvloersappartement Te renoveren gelijkvloersappartement Te renoveren gelijkvloersappartement Te renoveren gelijkvloersappartement
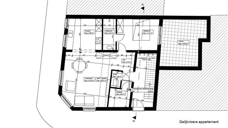
Een lichtrijk, gelijkvloers appartement met bakken mogelijkheden, dat krijg je hier in de Prins Leopoldstraat. Vergunning voor het omvormen naar een woning aanwezig. Op de hoek van de Prins Leopoldstraat met de Oudstrijdersstraat vind je dit ruime, lichte hoekpand, mét zicht op het mooie heraangelegde Montgomerypleintje net voor de deur. Het betreft een volledige renovatie waarbij je de goedgekeurde vergunning reeds in handen hebt. Hier kan de ruimte omgevormd worden tot woning en een privatief terras gemaakt worden van circa 19m². Je hebt hier dus de mogelijkheid om een gelijkvloers appartement te maken in een hoekpand met: een ruime leefruimte met open keuken en veel lichtinval, handige berging, gasten toilet, slaapkamer met ensuite badkamer en een groot terras. Goed om te weten: elke nieuwe eigenaar moet op basis van zijn aandeel in de basisakte bijdragen aan de kosten van de verbouwing van dak en achtergevel, onderling te verdelen tussen 3 eigenaars. Dan heb je ook meteen een energie zuiniger pand dat klaar is voor de toekomst! Voor meer info: https://www.immovasta.be/panden/gegevens/13240/ EPC-NR: label 'E'
Type vastgoed Appartement
Prijs 175.000
Bewoonbare opp. 67
Aantal slaapkamers 1
Aantal badkamers 1