Te koop Evergem, Elslo - Venhoute - Fase 1: Lot 09
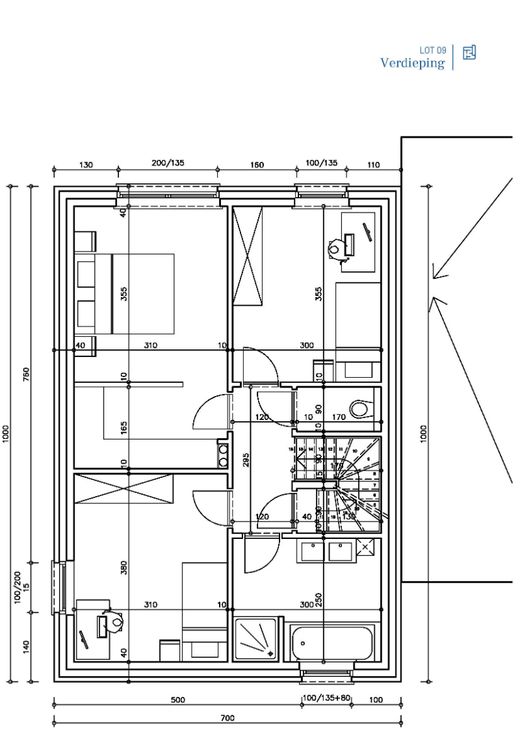
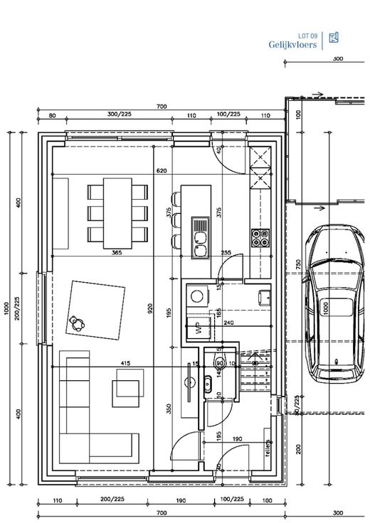
Een moderne halfopen nieuwbouwwoning met carport en tuinberging op een west-georiënteerd perceel in een rustige verkaveling. De woning beschikt over 3 slaapkamers waarvan 1 met dressing. Een vaste trap naar zolder is voorzien waardoor optioneel een 4e slaapkamer mogelijk is. Deze BEN-woning is voorzien van alle energiezuinige technieken zoals warmtepomp, vloerverwarming gelijkvloers en verdieping, ventilatie D met warmterecuperatie, regenwaterput 10 000L, zonnepanelen,... Meer info? Bel Ewout op 0497 588 888 of mail naar contact@huysmanbouw.be
Renovatieplicht: onbekend