Te koop Huis

Beschrijving van   

Vergelijk realty's

Te koop Huis

Huis Huis Huis Huis Huis
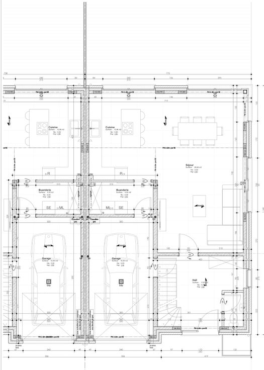
Nous vous invitons à venir découvrir ces projets d'exception, nichés dans un environnement champêtre au sein du pittoresque village de Pont-à-Celles. Maisons Compère vous présente de splendides constructions, allant de deux à trois façades de +/- 170m² habitables. Ces réalisations verront le jour dans un lieu de tranquillité, au cœur de ce charmant village. L'emplacement de ces constructions se situe à seulement quelques kilomètres du centre de Pont-à-Celles. Vous allez pouvoir bénéficier ainsi de la proximité des divers commerces. Les projets que nous proposons sont modulables, vous permettant ainsi d'adapter votre futur foyer. Les terrains présentent des superficies variant de 343m² à 571m² vous offrant ainsi de nombreuses possibilités. Les constructions proposées se composent comme suit : Chaque maison disposera d'un hall d'entrée accueillant, d'un spacieux living/cuisine ainsi que d'une buanderie. Les 4 chambres bénéficieront d'agréables dimensions ainsi qu'une salle de bain accueillant baignoire et douche. De plus, profitez d'un garage ainsi que de deux emplacements parking. Le prix : 299.000,00 €. N'hésitez plus et prenez contact sans plus tarder avec Mr Mariani (IPI 103174) au 0475/23.62.76. Il se fera un plaisir de vous renseigner et de vous accompagner dans la réalisation du projet de vos rêves !
Type vastgoed Huis
Prijs 299.000
Bewoonbare opp. 170
Aantal slaapkamers 4
Aantal badkamers 1