Te koop Nieuwbouw KMO unit te koop in Wielsbeke

Beschrijving van   

Vergelijk realty's

Te koop Nieuwbouw KMO unit te koop in Wielsbeke

Nieuwbouw KMO unit te koop in Wielsbeke Nieuwbouw KMO unit te koop in Wielsbeke Nieuwbouw KMO unit te koop in Wielsbeke Nieuwbouw KMO unit te koop in Wielsbeke
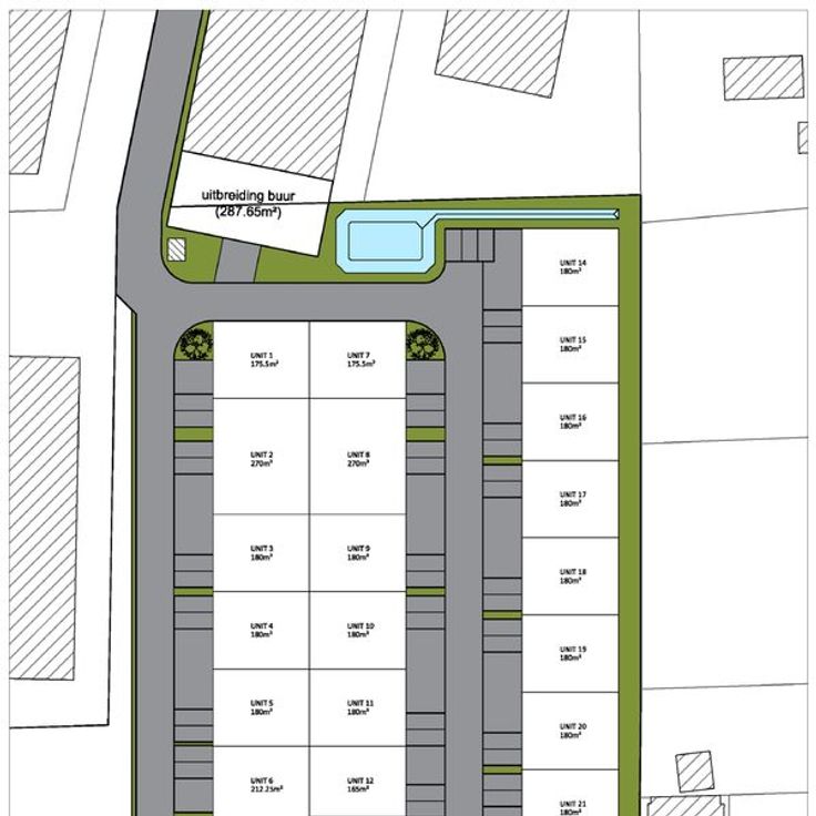
Nieuwbouw KMO site Saturnus bestaande uit 23 kwalitatieve KMO units te koop in Wielsbeke. De units hebben een oppervlakte van 152m² tot 270m² en kunnen worden gecombineerd. Specificaties: - staalconstructie met betonplaat 2,5mH - vrije hoogte 6m - 10cm PIR isolatie - Vloer Gepolierde betonvloer 15cm, vloerbelasting 1T/m² - steeldeck - lichtstraat voorzien - aluminium toegangsdeur - brandklasse C - 3 X 400V - 40A - 2 privatieve parkeerplaatsen per unit - gepolierde betonvloer - alu sectionale poort 4m x 4.5m - RWA systeem De oplevering is voorzien voor Q1 2025.
Type vastgoed Commercieel
Prijs 245.000
Bewoonbare opp. 176