Te koop Huis

Beschrijving van   

Vergelijk realty's

Te koop Huis

Huis Huis Huis Huis Huis
Voor meer info bel naar het nummer 09/280.60.60 of mail naar info@durabrik.be Renovatieplicht: nee
Type vastgoed Huis
Prijs 427.500
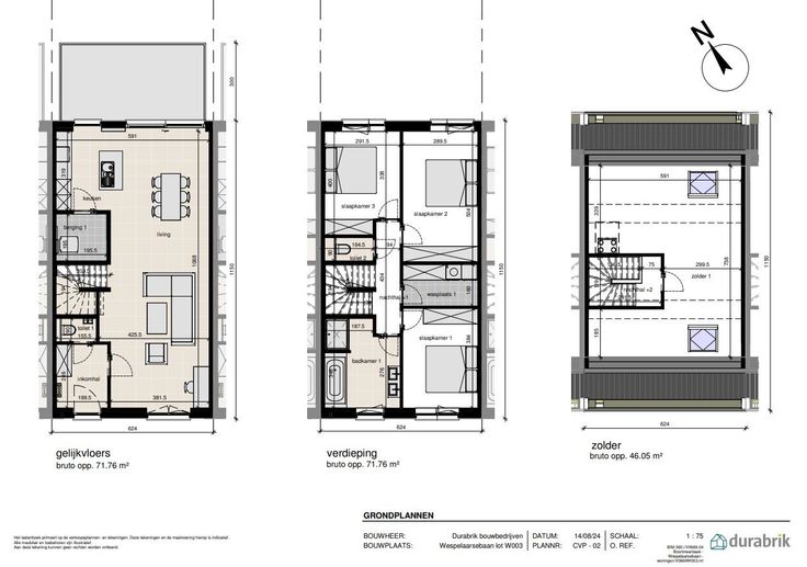
Bewoonbare opp. 189
Aantal slaapkamers 3
Aantal badkamers 1