Te koop Her op te bouwen woning met magazijn op te...

Beschrijving van   

Vergelijk realty's

Te koop Her op te bouwen woning met magazijn op terrein van 1.173m²

Her op te bouwen woning met magazijn op terrein van 1.173m² Her op te bouwen woning met magazijn op terrein van 1.173m² Her op te bouwen woning met magazijn op terrein van 1.173m² Her op te bouwen woning met magazijn op terrein van 1.173m² Her op te bouwen woning met magazijn op terrein van 1.173m² Her op te bouwen woning met magazijn op terrein van 1.173m² Her op te bouwen woning met magazijn op terrein van 1.173m² Her op te bouwen woning met magazijn op terrein van 1.173m² Her op te bouwen woning met magazijn op terrein van 1.173m² Her op te bouwen woning met magazijn op terrein van 1.173m² Her op te bouwen woning met magazijn op terrein van 1.173m²
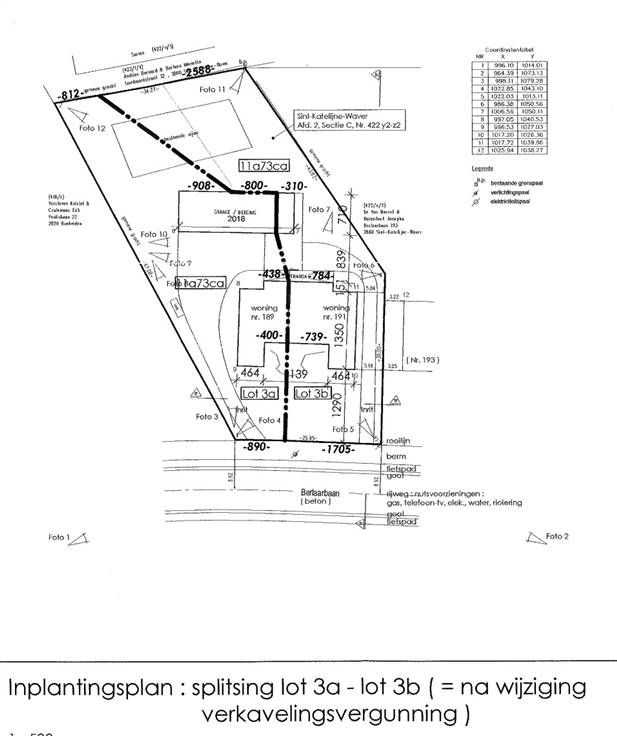
Totaal te renoveren of nieuw te bouwen half open bebouwing met magazijn gelegen op ruim stuk grond (1.173m²) Gunstig gelegen dicht bij uitvalswegen alsook centraal gelegen tussen centrum Mechelen en Sint-Katelijne-Waver. Verkavelingsvoorschriften: Bouwen van een halfopen bebouwing met een max diepte van 17m, breedte 5m vanaf de linker perceelgrens en max 3,5m hoog.
Type vastgoed Huis
Prijs 345.000
Aantal slaapkamers 3
Aantal badkamers 1