Te koop Huis

Beschrijving van   

Vergelijk realty's

Te koop Huis

Huis Huis Huis Huis Huis Huis Huis Huis Huis
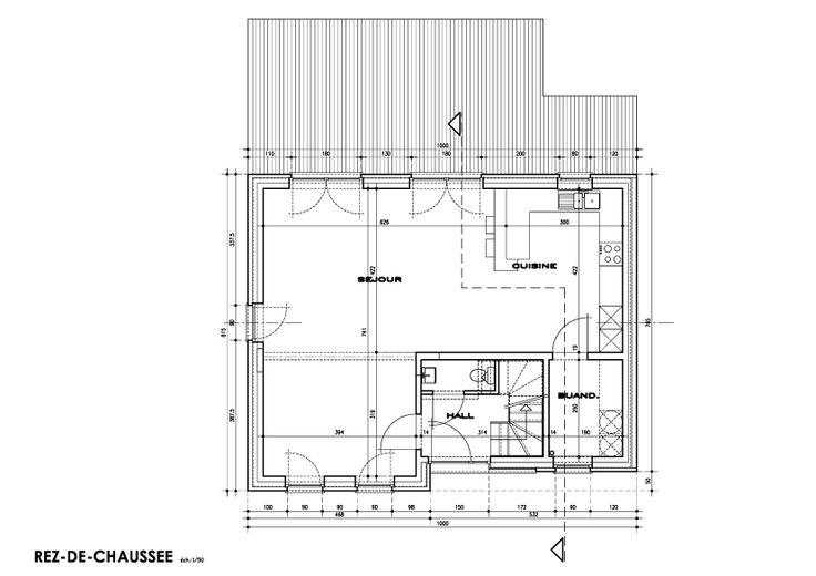
Nous avons le plaisir de vous présenter ce terrain constructible d'une superficie exceptionnelle de 790m², situé dans la pittoresque région de Poulseur à Comblaint-au-Pont. Ce terrain se distingue par sa façade mesurant 19 mètres et sa profondeur de 40 mètres, offrant ainsi de prometteuses possibilités d'aménagement. Sa localisation est particulièrement favorable : un arrêt de bus se trouve à seulement trois minutes, tandis que les commerces, incluant les restaurants, les supermarchés et stations-service, sont accessibles en moins de dix minutes. De surcroît, l'accès à l'autoroute E25 est également à une distance de dix minutes, facilitant ainsi vos déplacements vers Liège et Namur. Nous vous soumettons un projet dont la surface habitable est de 150m², organisé de la manière suivante : Au rez-de-chaussée, vous découvrirez un hall d'entrée, un séjour lumineux agrémenté d'une cuisine ouverte, une buanderie et un WC. Un hall de nuit, situé à l'étage, vous conduira vers trois belles chambres et une salle de bain. Le prix du terrain associé à ce projet s'élève à 303.774,00 € HTVA, hors frais de notaire et frais d'architecte. Nous vous prions de bien vouloir noter que ce tarif est indicatif et susceptible de varier en fonction des personnalisations apportées au projet. Pour toute information complémentaire, nous restons à votre entière disposition pendant nos heures d'ouverture.
Type vastgoed Huis
Prijs 303.774
Bewoonbare opp. 150
Aantal slaapkamers 3
Aantal badkamers 1