Te koop Te renoveren handelswoning in hartje Haalt...

Beschrijving van   

Vergelijk realty's

Te koop Te renoveren handelswoning in hartje Haaltert!

Te renoveren handelswoning in hartje Haaltert! Te renoveren handelswoning in hartje Haaltert! Te renoveren handelswoning in hartje Haaltert!
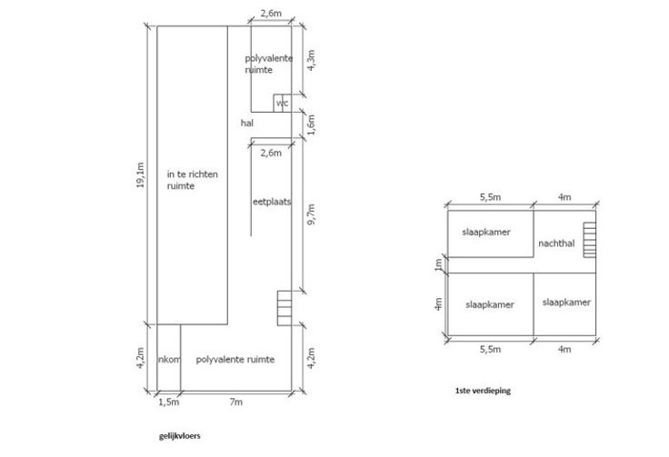
Ontdek deze unieke kans in hartje Haaltert. Deze te renoveren handelswoning ligt in een rustige, doodlopende straat en biedt volop mogelijkheden voor een complete vernieuwing. Op het gelijkvloers bevinden zich meerdere ruimtes die nog volledig naar eigen smaak en inzicht kunnen worden ingericht. Dit biedt talloze mogelijkheden voor een winkel, kantoorruimte of andere commerciële bestemming. De eerste verdieping bestaat uit drie kamers. Deze ruimtes bieden veel potentieel voor woon- of werkruimte, afhankelijk van uw behoeften. Daarnaast beschikt de woning over een zolder (bereikbaar via een vaste trap), wat extra mogelijkheden voor uitbreiding of opslag biedt. De woning is wel reeds voorzien van dubbele beglazing.  Mits een bestemmingswijziging kan dit pand zelfs volledig als woning worden ingericht. De centrale ligging van deze woning is een groot pluspunt. U bevindt zich vlakbij winkels en scholen, en op amper 1 km van het centrum van Haaltert. Het treinstation van Ede, op de lijn Zottegem-Brussel, ligt op slechts 900 meter afstand, wat zorgt voor een uitstekende verbinding met het openbaar vervoer. Voor meer informatie of een bezoek, contacteer Tijl via 0477 44 86 11.
Type vastgoed Huis
Prijs 165.000
Bewoonbare opp. 327
Aantal slaapkamers 3
Aantal badkamers 1