Te koop Huis

Beschrijving van   

Vergelijk realty's

Te koop Huis

Huis Huis
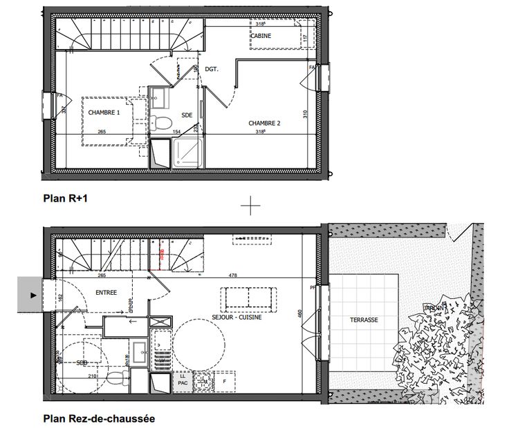
Pas-de-Calais - 62224 - EQUIHEN PLAGE - 367 200 euros Bien rare à la vente, dans un écrin de verdure a proximité de la mer, une petite résidence de 16 logements avec vue dégagée sur les environs va prendre naissance. Au rdc : Séjour - Cuisine, salle de bain, WC. A l'étage : 2 cambres et une cabine, salle d'eau. En extérieur : Une terrasse, un jardin et un parking, il ne manque rien ! Orientation Ouest. Disponible dés juillet 2026. Pour visiter et vous accompagner dans votre projet, contactez Franck NORMAND, au 0670441788 ou par courriel à f.normand@proprietes-privees.com Cette présente annonce a été rédigée sous la responsabilité éditoriale de Franck NORMAND agissant sous le statut d'agent commercial immatriculé au RSAC BOULOGNE SUR MER 823685136 auprès de la SAS PROPRIETES PRIVEES, au capital de 44 920 euros, ZAC LE CHÊNE FERRÉ - 44 ALLÉE DES CINQ CONTINENTS 44120 VERTOU ; SIRET 487 624 777 00040, RCS Nantes. Carte professionnelle Transactions sur immeubles et fonds de commerce (T) et Gestion immobilière (G) n° CPI 4401 2016 000 010 388 délivrée par la CCI Nantes - Saint Nazaire. Compte séquestre n°30932508467 BPA SAINT-SEBASTIEN-SUR-LOIRE (44230) ; Garantie GALIAN - 89 rue de la Boétie, 75008 Paris - n°28137 J pour 2 000 000 euros pour T et 120 000 euros pour G. Assurance responsabilité civile professionnelle par MMA Entreprise n° de police 120.137.405 Mandat réf : 379138- Le professionnel garantit et sécurise votre projet immobilier. Franck NORMAND (EI) Agent
Type vastgoed Huis
Prijs 367.200
Aantal slaapkamers 2