Te koop Commerciële panden

Beschrijving van   

Vergelijk realty's

Te koop Commerciële panden

Commerciële panden Commerciële panden Commerciële panden Commerciële panden Commerciële panden Commerciële panden Commerciële panden Commerciële panden
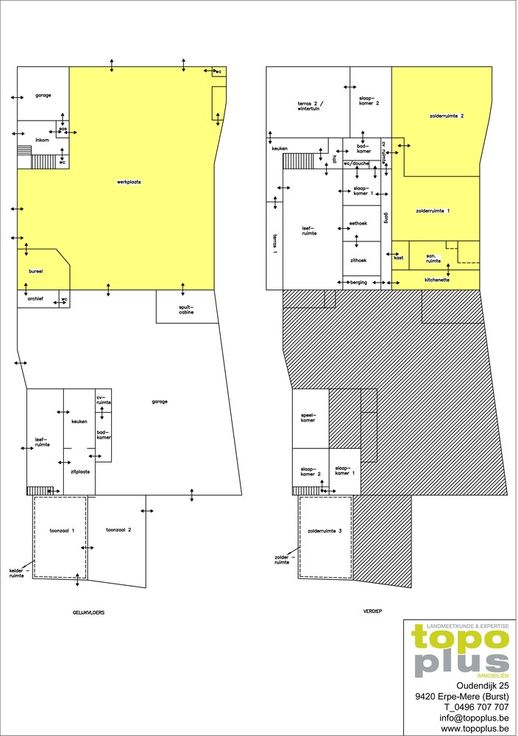
Het pand bestaat uit een oude schrijnwerkerij met bureel; met erboven een zolderruimte, kitchenette en sanitaire ruimt. Het pand is deels (werkplaats) verhuurd (handelshuurovereenkomst) sinds 01/01/2020. De werkplaats is toegankelijk via de poort aan de linkerzijde (erfdienstbaarheid over de private weg (betonverharding), links van de toonzaal.) Volgens het gewestplan is de eigendom gelegen in natuurgebied; volgens het gemeentelijk RUP gelegen in zone zonevreemde woningen fase 1 met als bestemming: kerngebonden woning in prioritair gebied voor natuur.  Dit pand maakt deel uit van een grotere eigendom waarbij de nutsvoorzieningen in elkaar over lopen. De koper dient zelf in te staan voor een eventuele splitsing. Gelegen op wandelafstand van de verbindingsweg Aalst-Zottegem en nabij E40. Renovatieplicht: onbekend
Type vastgoed Commercieel
Prijs 140.000
Aantal badkamers 1