Te koop Bouwgrond

Beschrijving van   

Vergelijk realty's

Te koop Bouwgrond

Bouwgrond Bouwgrond Bouwgrond Bouwgrond Bouwgrond Bouwgrond Bouwgrond Bouwgrond Bouwgrond Bouwgrond Bouwgrond
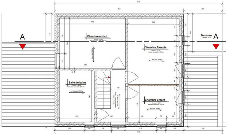
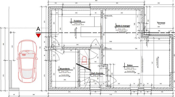
L’agence immobilière STRAZZERI’MMO a le plaisir de vous présenter ce beau terrain à batir à Forchies-la-Marche avec permis d’urbanisme octroyé pour la construction d’une maison 4 façades comprenant 3 ch, parking, terrasse et jardin. Idéalement situé et proche de toutes les facilités (transports, commerces, écoles,..). Accès direct et rapide aux accès autoroutiers. Le permis délivré a pour objet la construction d’une maison unifamiliale composée comme suit : rez-de-chaussée : hall d’entrée avec WC séparé, salon, salle à manger avec baie vitrée, cuisine et buanderie. Etage : hall de nuit vers 3 chambres et salle de bain. Extérieur : parking, terrasse et jardin. Plans et dossier complet disponibles sur demande. Prix : FAIRE OFFRE > 39.000 EUR, sous réserve d’acceptation des propriétaires. Descriptif à titre informatif et non contractuel.
Type vastgoed Grond
Prijs 39.000