Te koop Huis

Beschrijving van   

Vergelijk realty's

Te koop Huis

Huis Huis Huis Huis Huis Huis Huis Huis Huis Huis Huis
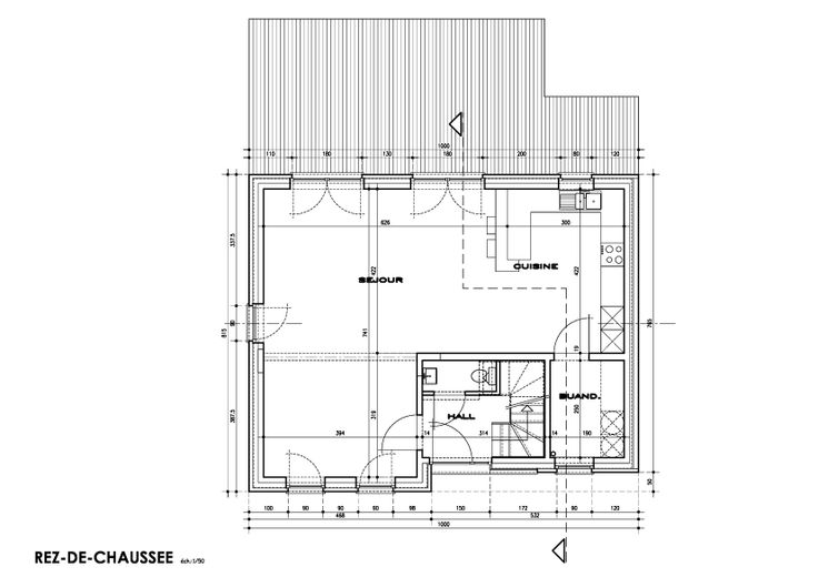
Maisons Compère a l'honneur de vous présenter ce splendide terrain à bâtir d'une superficie de 1.159m², harmonieusement situé dans la charmante région de Spy. Celui-ci bénéficie d'une façade de 18 mètres et d'une profondeur de 65 mètres, conférant ainsi un potentiel d'aménagement remarquable. L'emplacement de ce terrain est très avantageux, se trouvant à seulement une minute d'un arrêt de bus et à moins de cinq minutes des commodités comme des restaurants, supermarchés et stations-service. De plus, l'accès à la E42, qui permet de rejoindre Liège en un rien de temps, est à moins de deux minutes. Nous vous proposons un projet de construction d'une superficie de 150 m², organisé de la manière suivante : Au rez-de-chaussée, vous découvrirez un hall d'entrée accueillant, un séjour baigné de lumière naturelle, ainsi qu'une cuisine ouverte, une buanderie et un WC. À l'étage, un hall de nuit vous donnera accès à trois chambres, accompagnées d'une salle de bain élégante. Le projet est entièrement modulable, permettant ainsi d'adapter la construction selon vos souhaits et vos préférences personnelles. Le prix du terrain, associé à la construction, s'élève à 337.753,00 € HTVA, hors frais d'architecte et notaire. Ce montant est donné à titre indicatif et pourra être sujet à modification en fonction des personnalisations apportées au projet. Pour toute demande d'informations supplémentaires, nous sommes à votre entière disposition durant les heures de bureau.
Type vastgoed Huis
Prijs 337.753
Bewoonbare opp. 150
Aantal slaapkamers 3
Aantal badkamers 1