Te koop Huis

Beschrijving van   

Vergelijk realty's

Te koop Huis

Huis Huis Huis Huis Huis Huis Huis Huis Huis Huis Huis Huis Huis Huis Huis Huis
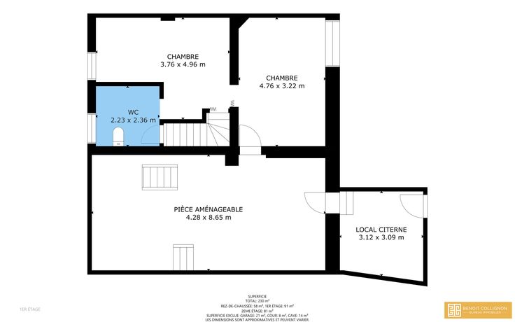
Bureau Immobilier Benoit Collignon recherche les amateurs parfaits pour cette maison de pierre, située dans le très recherché village d'Anthisnes. Cette maison à rénover conviendra à tout acquéreur qui recherche une localisation et du volume à aménager. Près de 200m2 à exploiter comme bon vous semble. La maison est saine, elle dispose d'une toiture rénovée mais l'installation électrique devra être réaménagée car elle n'est plus conforme. Autre points forts, en plus du volume et de sa localisation, un beau jardin bien orienté et un garage. VISITE VIRTUELLE A VOIR aussi sur le site de l'agence benoitcollignon.immo
Type vastgoed Huis
Prijs 165.000
Bewoonbare opp. 200
Aantal slaapkamers 3
Aantal badkamers 1