Te koop Kantoorruimte op toplocatie te centrum Bug...

Beschrijving van   

Vergelijk realty's

Te koop Kantoorruimte op toplocatie te centrum Buggenhout!

Kantoorruimte op toplocatie te centrum Buggenhout! Kantoorruimte op toplocatie te centrum Buggenhout!
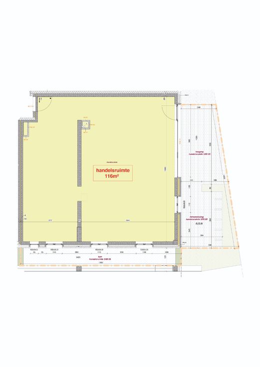
Deze kantoorruimte van 116 m² is gelegen op de gelijkvloerse verdieping van een hagelnieuw project in centrum Buggenhout op toplocatie met zicht op de kerk.  Deze kantoorruimte wordt casco afgeleverd en beschikt over een oost-gericht terras van 16 m².  Ondergronds zijn er mogelijkheden om parkings aan te kopen.  De tuinen rondom het gebouw worden gemeenschappelijk onderhouden, waardoor u steeds zorgeloos van het groen kan genieten!  Neem gerust contact op voor meer informatie of maak vrijblijvend een afspraak bij ons op kantoor om de plannen te bekijken.   We zijn bereikbaar op 052/41.41.94 of via info@rosiersderidder.be Ref.: 4110 Renovatieplicht: onbekend
Type vastgoed Commercieel
Prijs 299.000
Bewoonbare opp. 116