Te huur Net gerenoveerd appartement met ruim terras

Beschrijving van   

Vergelijk realty's

Te huur Net gerenoveerd appartement met ruim terras

Net gerenoveerd appartement met ruim terras Net gerenoveerd appartement met ruim terras Net gerenoveerd appartement met ruim terras Net gerenoveerd appartement met ruim terras Net gerenoveerd appartement met ruim terras Net gerenoveerd appartement met ruim terras Net gerenoveerd appartement met ruim terras Net gerenoveerd appartement met ruim terras Net gerenoveerd appartement met ruim terras Net gerenoveerd appartement met ruim terras Net gerenoveerd appartement met ruim terras Net gerenoveerd appartement met ruim terras Net gerenoveerd appartement met ruim terras Net gerenoveerd appartement met ruim terras Net gerenoveerd appartement met ruim terras Net gerenoveerd appartement met ruim terras
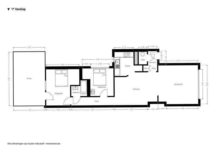
Als eerste bewoners van een piekfijn gerenoveerd appartement hoef je hier enkel je koffers uit te pakken! En met z’n lage kosten, 2 kamers, tof zuidgericht terras en toplocatie tussen het Te Boelaerpark en het Rivierenhof, is het hier ongetwijfeld goed wonen. Je stapt binnen in de betegelde inkomhal, die een apart toilet en een handige vestiairekast heeft. De leefruimte vooraan is met z’n 39 m² en kamerbrede raam - inclusief lamellen - enorm ruim én licht. De mooie laminaatvloer die je hier ziet, loopt door naar de achterzijde van het appartement. De matzwarte L-vormige keuken met z’n kunststof werkblad in marmerlook is volledig nieuw en heeft een tegelvloer en een betegelde spatwand. Je hebt hier een inductievuur, dampkap, grote matzwarte spoelbak, oven, koelkast met aparte diepvriezer, vaatwasser, aansluiting voor was en droog en nog enkele bergkasten. In de nachthal passer je eerst de kleinste slaapkamer, die een eigen lavabo heeft. De compacte badkamer bevindt zich ernaast en is ook volledig betegeld, met een ligbad, een lavabo met onderkast en een ventilatiesysteem. De master bedroom ligt achteraan en is ruim en licht, met een deur die uitgeeft op het zuidterras. Met z’n mooie XL-tegelvloer, houten bekleding tegen de wanden en amper inkijk, is dit een heerlijke buitenplek waar je zonder twijfel veel tijd zult spenderen! Bij interesse, gelieve uw kandidatuur te stellen via: https://www.immovasta.be/panden/gegevens/13203/
Type vastgoed Appartement
Prijs 975
Bewoonbare opp. 87
Aantal slaapkamers 2
Aantal badkamers 1