Te koop Huis

Beschrijving van   

Vergelijk realty's

Te koop Huis

Huis Huis Huis Huis Huis Huis Huis Huis Huis Huis Huis Huis Huis Huis Huis Huis Huis Huis Huis Huis Huis Huis Huis Huis Huis Huis Huis Huis
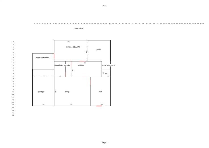
Sorry er is geen nederlandse vertaling beschikbaar. Toute l’âme d’un village dans cette maison de caractère à rénover entièrement. Le potentiel est très grand, l’imagination doit vous guider. Tout en conservant son âme authentique, cette maison vous offre la possibilité de créer votre univers familial dans lequel évoluer au fil du temps. Terrain d’idées pour rêveurs matérialistes. Nombreux matériaux de style à préserver (plancher, carrelages, etc...), pour créer une atmosphère moderne et chaleureuse
Type vastgoed Huis
Prijs 195.000
Bewoonbare opp. 200
Aantal slaapkamers 3
Aantal badkamers 1