Te koop Prachtige Nieuwbouw villa in de Engelendal...

Beschrijving van   

Vergelijk realty's

Te koop Prachtige Nieuwbouw villa in de Engelendalelaan te Brugge!

Prachtige Nieuwbouw villa in de Engelendalelaan te Brugge! Prachtige Nieuwbouw villa in de Engelendalelaan te Brugge!
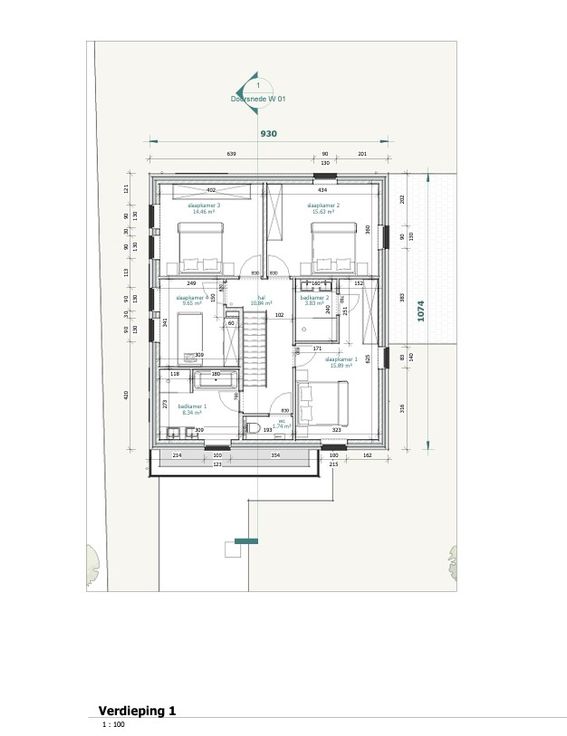
Bent u op zoek naar een nieuwbouwwoning in een prestigieuze buurt van Brugge? Dan is deze schitterende villa in de Engelendalelaan op een perceel van 675 m² misschien wel precies wat u zoekt. De Engelendalelaan is een zeer mooie laan in een rustige, groene omgeving, maar toch op steenworp afstand van alle voorzieningen die u nodig heeft. Scholen, openbaar vervoer en winkels bevinden zich allemaal in de directe nabijheid, wat deze locatie bijzonder aantrekkelijk maakt voor gezinnen. Deze ruime villa beschikt over een lichtrijke leefruimte en eetplaats met open keuken en bijhorende berging, 4 slaapkamers, 1 complete badkamer, 1 moderne douchekamer, een gesloten garage met berging. De woning wordt gebouwd volgens de regels van de kunst en met oog voor detail, zoals blijkt uit het aantrekkelijke lastenboek dat samen met de plannen op aanvraag per mail verkregen kan worden. Deze nieuwbouw villa is niet alleen esthetisch zeer aantrekkelijk, maar ook bijzonder duurzaam en comfortabel. Dankzij de volgende voorzieningen bent u verzekerd van optimaal woongenot en lage energiekosten: Een efficiënte warmtepomp, zonnepanelen voor duurzame energieopwekking, een geavanceerd ventilatiesysteem D voor een gezond binnenklimaat en vloerverwarming op zowel de benedenverdieping als de bovenverdieping!
Type vastgoed Huis
Prijs 683.300
Aantal slaapkamers 4
Aantal badkamers 1