Te huur Industriële gebouwen

Beschrijving van   

Vergelijk realty's

Te huur Industriële gebouwen

Industriële gebouwen Industriële gebouwen Industriële gebouwen Industriële gebouwen Industriële gebouwen Industriële gebouwen Industriële gebouwen Industriële gebouwen Industriële gebouwen
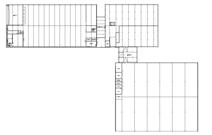
Showroom van 5.170 m2 met magazijnen van 3.157 m2 en 2.000 m2 met veel visibiliteit gelegen de belangrijke verkeersader Noord-Zuidverbinding te Hechtel-Eksel. Mogelijkheid tot het extra huren van een verhard buiten terrein (6.400 m2). Het magazijn is voorzien van led-verlichting, 3-fasenstroom, 5 laad- en loskaden, (gemeenschappelijke) gelijkvloerse poort en heeft een vrije hoogte van 4,2m.
Type vastgoed Commercieel
Prijs 35.050
Bewoonbare opp. 10515