Te koop Duplex

Beschrijving van   

Vergelijk realty's

Te koop Duplex

Duplex Duplex Duplex Duplex Duplex Duplex Duplex Duplex Duplex Duplex Duplex Duplex Duplex Duplex
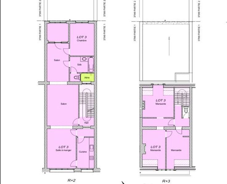
SAINT-GILLES - REF : 6235283 - Dans un quartier résidentiel entre la Gare du Midi et le Parvis de Saint-Gilles, nous vous proposons cet appartement composé d'un plateau reconnu comme logement et un grenier (le grenier est actuellement agencé en un studio avec cuisine, douche, living/chambre). Il se composerait au 1er plateau d'un hall d'entrée cage d'escalier, un spacieux living, une cuisine séparée, une salle de bain, un wc, une chambre et une buanderie. Au niveau du 2ème plateau : 3 chambres et une salle de bain. Détails importants: double vitrage PVC, chaudière individuelle au gaz Vaillant, construction plancher, PEB G 448 kWhEP/m2/an, beaucoup de travaux à prévoir, un plateau reconnu comme logement l'autre comme combles (possibilité de régulariser moyennant permis), compteurs individuels, pas de charges, nouvelle division. Ne tardez pas à venir visiter ce bien avec votre agence Perception Immobilière en nous contactant au 0496/70.83.70. et pour plus d'informations rendez-vous sur notre site www.perception-immobiliere.be. Rejoignez également notre page Facebook (www.facebook.com/perceptionimmobiliere/) pour suivre notre actualité et nos offres en exclusivité !
Type vastgoed Appartement
Prijs 280.000
Bewoonbare opp. 145
Aantal slaapkamers 4
Aantal badkamers 2