Te koop Energieneutrale, gesloten bebouwing met A+...

Beschrijving van   

Vergelijk realty's

Te koop Energieneutrale, gesloten bebouwing met A+ label!

Energieneutrale, gesloten bebouwing met A+ label! Energieneutrale, gesloten bebouwing met A+ label! Energieneutrale, gesloten bebouwing met A+ label! Energieneutrale, gesloten bebouwing met A+ label! Energieneutrale, gesloten bebouwing met A+ label!
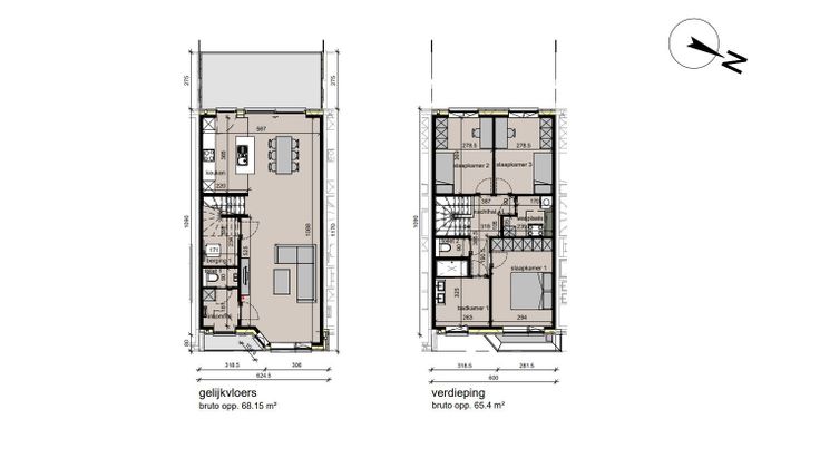
Ben je op zoek naar de meest energiezuinige en duurzame woning op de markt? Dan voldoet deze woning met A+ label en E-peil -23 alvast aan jouw eisen. Deze Gesloten Bebouwing (GB) Lot 5 is gelegen aan de Buntstraat te Wondelgem in de laatste fase van een gemeenschappelijke verkaveling. Heel rustig gelegen, vlakbij winkels, scholen en ander faciliteiten. Onze woningen worden ingericht met de nieuwste technieken, doorgedreven isolatiepakket, vloerverwarmingen op alle verdiepen, ventilatiesysteem D, zonnepanelen, regenwaterput,… . Vraag een afspraak met jouw bouwadviseur via het gratis nummer 0800 / 62 732 of info@durabrik.be  Daarin bespreken we gezamenlijk de plannen, energiekosten, Wet Breyne en nog zoveel meer. Renovatieplicht: nee
Type vastgoed Huis
Prijs 418.000
Bewoonbare opp. 133
Aantal slaapkamers 3
Aantal badkamers 1