Te koop Huis

Beschrijving van   

Vergelijk realty's

Te koop Huis

Huis Huis Huis Huis Huis Huis Huis
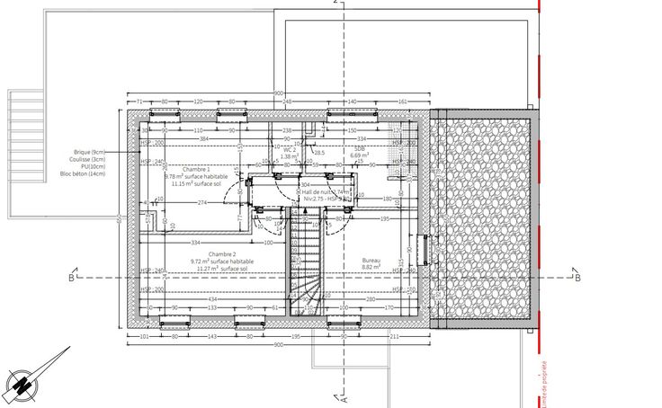
Dans la charmante commune de Manhay, au coeur d'un écrin de verdure, Maisons Compère vous invite à envisager l'acquisition d'un splendide terrain à bâtir. Ce bien de 9 ares se distingue par une vue imprenable sur la vallée environnante, propice à un cadre de vie serein et apaisant. Sa localisation stratégique, à moins de 4 kilomètres de l'autoroute E25, vous offre un accès direct à Manhay et à la célèbre Baraque Fraiture, alliant tranquillité de la campagne et commodités. Nous avons le plaisir de vous présenter une maison trois façades entièrement équipée. Au rez-de-chaussée, un hall d'entrée menant à un espace de vie entièrement ouvert vous y attend, alliant un beau séjour et une cuisine, tout en profitant d'un local technique pratique. À l'étage, un hall de nuit vous permettra d'accéder à deux belles chambres à coucher, à une salle de bain élégante, ainsi qu'un bureau pouvant facilement être transformé en une troisième chambre ou en salle de jeu. Ce projet est modulable et personnalisable selon vos souhaits et vos envies. Nous vous invitons à découvrir ce projet attrayant, comprenant le terrain et la construction, au prix de 313.088,00 € HTVA, hors frais d'architecte et frais de notaire. Le prix indiqué est à titre indicatif et pourra être ajusté en fonction de la personnalisation de votre projet. Pour des renseignements supplémentaires, Mr Mariani (IPI 103.174) se tient à votre disposition au 0475/23.62.76.
Type vastgoed Huis
Prijs 313.088
Bewoonbare opp. 160
Aantal slaapkamers 2
Aantal badkamers 1