Te huur Bemeubelde commerciële winkelruimte in res...

Beschrijving van   

Vergelijk realty's

Te huur Bemeubelde commerciële winkelruimte in residentie ERTBORN,

Bemeubelde commerciële winkelruimte in residentie ERTBORN, Bemeubelde commerciële winkelruimte in residentie ERTBORN, Bemeubelde commerciële winkelruimte in residentie ERTBORN, Bemeubelde commerciële winkelruimte in residentie ERTBORN,
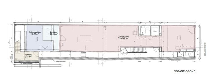
Bent u op zoek naar een commerciële winkelruimte in Antwerpen? Deze winkelruimte is gelegen in het hart van Antwerpen en biedt een unieke kans voor ondernemers die op zoek zijn naar een goed bereikbare locatie met veel potentieel. Met een oppervlakte van 108 vierkante meter biedt deze ruimte voldoende mogelijkheden voor verschillende soorten retailactiviteiten. Dankzij de ligging in het centrum van Antwerpen, trekt de winkelruimte een groot en divers publiek aan. Of u nu een startende ondernemer bent of een gevestigde winkel wilt uitbreiden, deze winkelruimte biedt u de perfecte kans om uw bedrijf te laten groeien. Neem vandaag nog contact met ons op voor meer informatie over deze unieke winkelruimte in Antwerpen.
Type vastgoed Commercieel
Prijs 1.250
Bewoonbare opp. 36
Gemeubileerd YES