Te koop Te bouwen alleenstaande woning te koop.

Beschrijving van   

Vergelijk realty's

Te koop Te bouwen alleenstaande woning te koop.

Te bouwen alleenstaande woning te koop. Te bouwen alleenstaande woning te koop. Te bouwen alleenstaande woning te koop.
Deze woning wordt water- en winddicht gebouwd op een mooi perceel, en biedt jou de kans om de afwerking volledig naar eigen smaak te bepalen. De woning combineert energiezuinigheid met hedendaags comfort, en wordt gerealiseerd met oog voor jouw budget. Ontdek hoe we samen jouw ideale thuis kunnen creëren! Meer informatie over de voorgestelde bouwgronden en onze woningen? Neem vrijblijvend contact met ons op. Wij helpen je graag verder. Mail naar aanvraag@yourhome.be of bel 056 755 788 Tip: Bezoek onze Kijkwoning na afspraak (zie www.yourhome.be/kijkwoning)
Type vastgoed Huis
Prijs 387.206
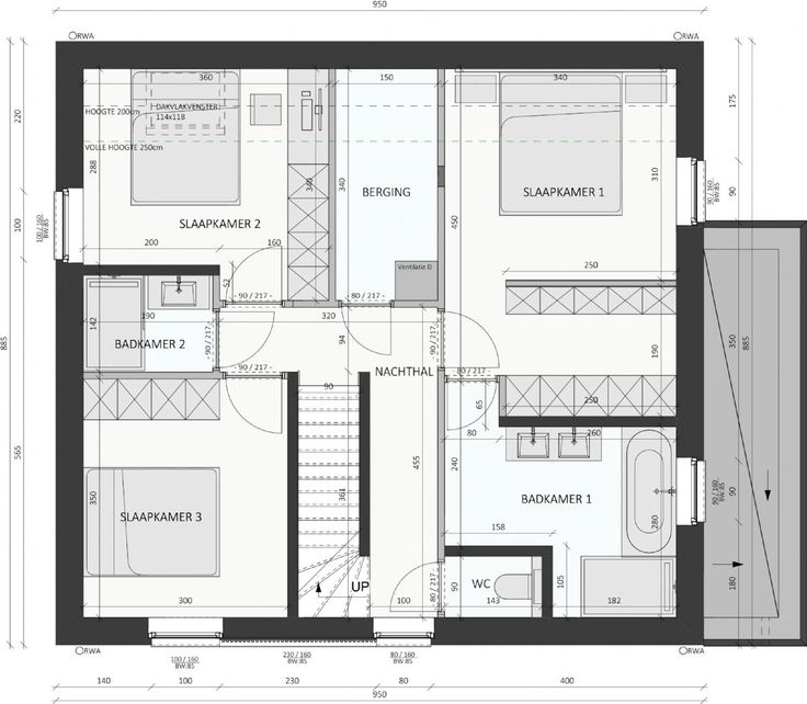
Bewoonbare opp. 221
Aantal slaapkamers 3