Te koop Kieldrecht (Beveren), Ganzendries - 1 fase: Lot 01
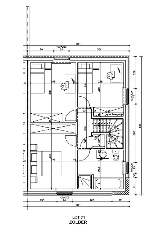
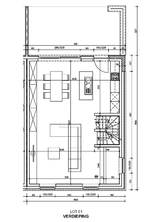
Kom jij hier binnenkort thuis? Kies je interieurafwerking en verhuis snel naar jouw ALL-IN afgewerkte & energiezuinige nieuwbouwwoning! Deze halfopen bebouwing is momenteel afgewerkt tot chape en pleisterwerken. Als koper heb je nog de vrije keuze van keuken, vloer, sanitaire toestellen en binnendeuren. De voorgestelde PRIJS is INCLUSIEF alle interieurafwerking! Onze interieurvormgever helpt je bij het maken van alle keuzes. Daarbovenop is ook de volledige tuinaanleg uitgevoerd en dus inbegrepen in de prijs! Deze woning heeft een optimale én verrassend grote planindeling met een overdekte autostaanplaats, een grote berging, wasplaats, open leefruimte, 3 slaapkamers en een badkamer met bad + douche. Zie jij jezelf hier wonen? Bel Ewout op 0497 588 888 of mail naar contact@huysmanbouw.be voor meer informatie. Meer info over het project op huysmanbouw.be
Renovatieplicht: onbekend