Te koop Huis

Beschrijving van   

Vergelijk realty's

Te koop Huis

Huis Huis Huis Huis Huis Huis Huis Huis Huis Huis Huis Huis Huis
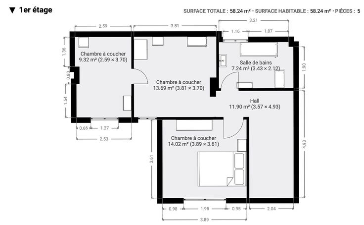
Vous êtes à la recherche d'une maison familiale ? ERA BLAVIER vous invite à découvrir cette maison à rafraîchir, offrant 2 chambres + bureau (4ch possibles). Vous serez charmés par son potentiel et les vastes espaces qu'elle propose. Dès l'entrée, vous serez accueillis dans un spacieux hall qui mène à la buanderie(avec wc) et aux pièces de vie lumineuses (salon, salle à manger, cuisine). À l'étage, la maison dispose de 2 chambres, un bureau/dressing utilisé comme chambre et au 1er étage, une grande pièce supplémentaire pouvant être aménagée en 2 ou 1 grande chambre, offrant ainsi la possibilité d'obtenir 4 chambres au total. La maison offrira à son nouveau propriétaire un jardin accessible depuis la buanderie par un escalier. N'hésitez pas à nous contacter dès à présent au 04 235 21 21 pour planifier une visite ! PEB D : N° 20240725019170; E spec : 337 ; E Total : 47449 kwh/an Les mesures sont fournies à titre purement indicatif et non contractuel.Le propriétaire, vendeur du bien, aura la faculté légale, libre et autonome, de vendre ou non. S'il décide de vendre, il n'est pas obligé de retenir l'offre la plus élevée mais choisit celle qui lui convient le mieux en fonction de ses propres critères.
Type vastgoed Huis
Prijs 185.000
Bewoonbare opp. 140
Aantal slaapkamers 2
Aantal badkamers 1