Te koop Appartementsgebouw

Beschrijving van   

Vergelijk realty's

Te koop Appartementsgebouw

Appartementsgebouw Appartementsgebouw Appartementsgebouw Appartementsgebouw Appartementsgebouw Appartementsgebouw Appartementsgebouw Appartementsgebouw Appartementsgebouw Appartementsgebouw Appartementsgebouw Appartementsgebouw Appartementsgebouw
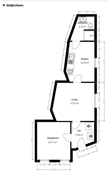
Investeer in een opbrengsteigendom op een toplocatie in Kontich ! Deze centraal gelegen eigendom bestaat uit twee op te knappen appartementen, elk met een eigen ingang, wat het perfect maakt voor verhuur of eigen gebruik. App 1 bevindt zich op het gelijkvloers en biedt een ruime inkomhal, een gezellige woonkamer, een keuken, een badkamer en een comfortabele slaapkamer. Op de eerste verdieping vindt u een extra slaapkamer, ideaal als hoofdslaapkamer of kantoorruimte. Appartement 2 beschikt over een inkomhall, een woonkamer, keuken, badkamer en slaapkamer. Dankzij de aparte ingangen voor beide appartementen geniet u van volledige privacy! Dit is een unieke kans voor investeerders die op zoek zijn naar extra verhuurpotentieel ! EPC glv : 384 kWh/m²jaar (D label) uc: 20240124-0003120519-RES-1- EPC 1 ste verd : 276 kWh/m² jaar (C label) uc: 20240124-00003120475-RES-1
Type vastgoed Huis
Prijs 239.000
Aantal slaapkamers 3
Aantal badkamers 2