Te koop Ondergrondse garage staanplaats in residen...

Beschrijving van   

Vergelijk realty's

Te koop Ondergrondse garage staanplaats in residentie Louis in de wi

Ondergrondse garage staanplaats in residentie Louis in de wi
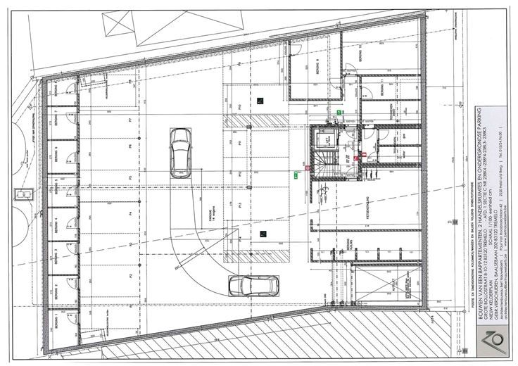
Ondergrondse garage staanplaats in residentie Louis in de winkelstraat van Tremelo. U woont in Tremelo centrum, maar geen plaats om uw auto veilig te stationeren, is hier de oplossing voor u. Ruime auto staanplaats( nr 14, zie bijgevoegd plan) te koop in het nieuwbouw project residentie Louis, toegankelijk met autolift. Voor meer info of bezoek, bel Ronny Storms 0487 66 33 60 of mail ronnystorms@janssenenjanssen.be
Type vastgoed Garage
Prijs 20.000