Te koop Charmante energiezuinige woning in rustig ...

Beschrijving van   

Vergelijk realty's

Te koop Charmante energiezuinige woning in rustig wegeltje

Charmante energiezuinige woning in rustig wegeltje Charmante energiezuinige woning in rustig wegeltje Charmante energiezuinige woning in rustig wegeltje Charmante energiezuinige woning in rustig wegeltje Charmante energiezuinige woning in rustig wegeltje
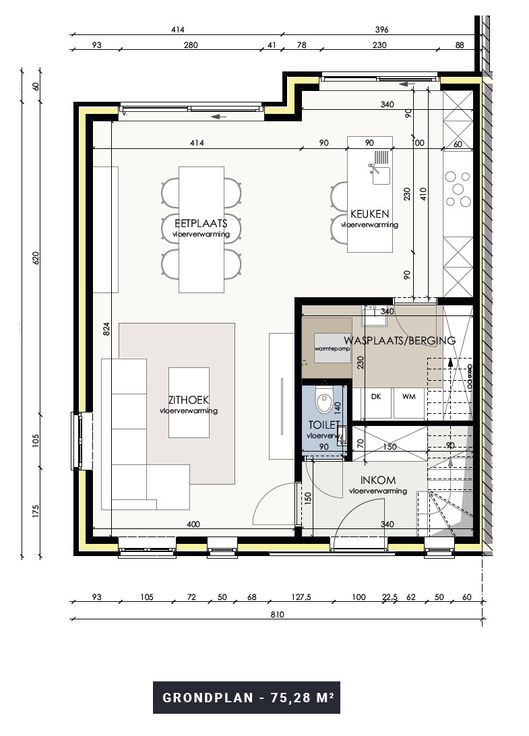
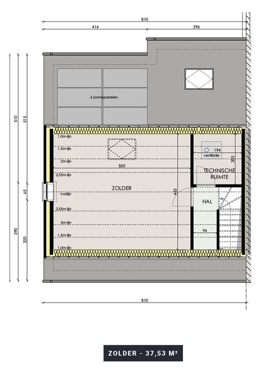
Langs de Borstelstraat in Houthulst wordt deze prachtige halfopen projectwoning (lot 2) gerealiseerd. De grote stijlvolle voordeur leidt naar een woning die beschikt over een open leefruimte, een kwalitatief afgewerkte keuken, 3 slaapkamers, een moderne badkamer en een vaste trap leidt naar een extra zolderruimte. Geniet van het comfort van een geothermische warmtepomp en vloerverwarming. De woning is gelegen aan een rustig wegeltje met beperkt verkeer. Deze nieuwbouwwoningen met een E-peil onder de 20, voorzien van zonnepanelen, een ventilatiesysteem type D wordt volledig afgewerkt en instapklaar opgeleverd, inclusief alle nodige bevloeringen, de aanleg van de (voor)tuin met afsluitingen, terras, gras, oprit en een pad naar de voordeur. De woning bevindt zich aan een rustig wegeltje met weinig doorgaand verkeer. Daarbij heeft elke woning een eigen carport met rustieke houten elementen. De prijs hier gecommuniceerd is exclusief kosten en btw, bekijk de ALL-IN prijs op onze website. Klaar om te verhuizen? Meer info, prijzen en grondplan op: www.dumobil.be/woonprojecten/houthulst-borstelstraat Of vraag vrijblijvend informatie via onze bouwadviseur Sam Borrey: sam@dumobil.be | 0483 210 133 Renovatieplicht: onbekend
Type vastgoed Huis
Prijs 400.800
Bewoonbare opp. 182
Aantal slaapkamers 3
Aantal badkamers 1