Te koop Huis

Beschrijving van   

Vergelijk realty's

Te koop Huis

Huis Huis Huis Huis Huis Huis Huis Huis Huis Huis Huis Huis Huis Huis Huis Huis Huis Huis Huis Huis Huis Huis Huis Huis Huis
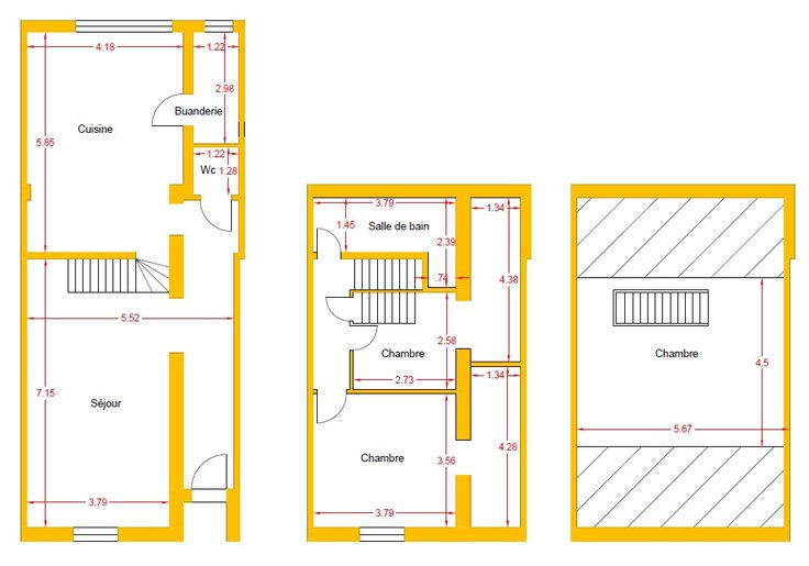
Adresse : 6032 Mont-sur-Marchienne – rue de la Ronche, 15A Superbe maison de 120m² nets composée de 3 chambres, SDB et 1 cave, le tout sur une propriété de 1a48ca. AUCUN travaux à prévoir, il n’y a plus qu’à déposer vos valises. Situation idéale, au calme et à proximité de toutes commodités (bus, écoles, magasins et grands axes). Au rez: hall d’entrée (10m²), WC avec lave-mains, séjour lumineux (27m²), cuisine super équipée indépendante avec ilot central donnant accès à la terrasse et au jardin (cuisinière au gaz de ville, hotte, four, frigo-congélateur, lave-vaisselle, évier), buanderie de 4m². A l’étage : hall de nuit de 5m², 2 chambres dont une avec dressing (14m² + dressing séparé de 3m² et 12m²). A l’étage +1 : 1 grande chambre de 20m². Au sous-sol : petite cave accessible via une trappe. A l’extérieur : terrasse carrelée, jardinet et abri de jardin. Equipements : chauffage central au gaz de ville, chaudière Vaillant, thermostat d’ambiance, électricité mono-horaire, châssis double et triple en PVC, bonne toiture en tuile. Possibilité de frais d’enregistrement réduits vu le RC net à 480 euros. Faire offre à partir de 230.000 euros. Prix d’achat immédiat: 260.000 euros PEB C n°20240907006920 – 250 kwh/m².an – 38834 kwh/an
Type vastgoed Huis
Prijs 230.000
Bewoonbare opp. 120
Aantal slaapkamers 3
Aantal badkamers 1