Te koop Appartementsblok

Beschrijving van   

Vergelijk realty's

Te koop Appartementsblok

Appartementsblok Appartementsblok Appartementsblok Appartementsblok Appartementsblok Appartementsblok Appartementsblok Appartementsblok Appartementsblok Appartementsblok Appartementsblok Appartementsblok Appartementsblok Appartementsblok Appartementsblok Appartementsblok Appartementsblok Appartementsblok
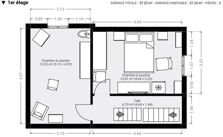
Opportunité à saisir : ERA BLAVIER vous invite à venir visiter cette maison au beau potentiel de 3 chambres (4 possible). Vous êtes à la recherche d'un bien d'investissement ou d'un premier achat idéale ? Dès l'entrée, vous serez accueillis par le hall d'entrée menant directement aux pièces de vies du rez-de-chaussée et à l'étage. Vous y retrouverez un salon, une salle à manger, une cuisine et une salle de bain avec WC. À l'étage, la maison dispose de 2 chambres et au 2e étage, vous pourrez profiter d'une chambre supplémentaire et un dressing / bureau. La maison n'a pas d'extérieur. Elle peut très bien convenir pour une colocation et pourrait générer un revenu locatif de 1200€ brut /mois.Contactez-nous au 04 235 21 21 pour la visiter ! PEB D , N°20240423024079, E spec : 277 ; E total : 29 329. Les informations et dimensions sont données à titre indicatif et ne sont pas contractuelles. Le propriétaire, vendeur du bien, a le droit légal, libre et indépendant de vendre ou de ne pas vendre. S'il décide de vendre, il n'est pas obligé d'accepter l'offre la plus élevée, mais choisit celle qui lui convient le mieux selon ses propres critères.
Type vastgoed Huis
Prijs 129.000
Bewoonbare opp. 110
Aantal slaapkamers 3
Aantal badkamers 1