Te koop Appartement

Beschrijving van   

Vergelijk realty's

Te koop Appartement

Appartement Appartement
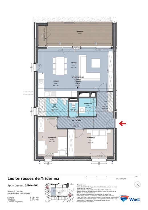
Cet appartement de 2 chambres est situé au rez-de-chaussée de la résidence et dispose en plus de la terrasse d'un accès direct au jardin (commun). La terrasse est plein Sud. Comptez en plus la cave (de 4,500 euro à 6000 euro pour les plus grandes), le parking intérieur (16.000 euro) et la place de parking extérieure (5.500 euro). Possibilité d'acquérir au taux de TVA de 6% au lieu de 21% sous certaines conditions. Renseignements au 087/33.03.48
Type vastgoed Appartement
Prijs 276.300
Bewoonbare opp. 88
Aantal slaapkamers 2
Aantal badkamers 1