Te koop Nieuwbouwproject - Appartementen

Beschrijving van   

Vergelijk realty's

Te koop Nieuwbouwproject - Appartementen

Nieuwbouwproject - Appartementen Nieuwbouwproject - Appartementen Nieuwbouwproject - Appartementen Nieuwbouwproject - Appartementen Nieuwbouwproject - Appartementen
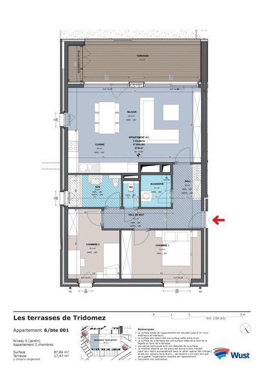
La voici la 3ème résidence sur le site de Tridomez : la résidence Descartes. La construction commencera début 2023 mais les réservations sont ouvertes ! La résidence comptea 3 niveaux et offre 9 appartements de 2 et 3 chambres-à-coucher avec de très grandes terrasses (de 15 m2 à 20 m2) exposées plein Sud. Vous pourrez profiter aussi d'une cave, un parking en sous-sol et un parking extérieur en sus. L'endroit est PARFAIT car vous êtes proche des commerces tout en état au grand calme ! On ne peut pas rêver mieux. N'hésitez pas à prendre votre rendez-vous au 087/33,03,48 afin de vous présenter le projet dans son ensemble.
Type vastgoed Appartement
Prijs Op aanvraag