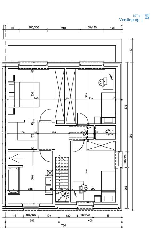
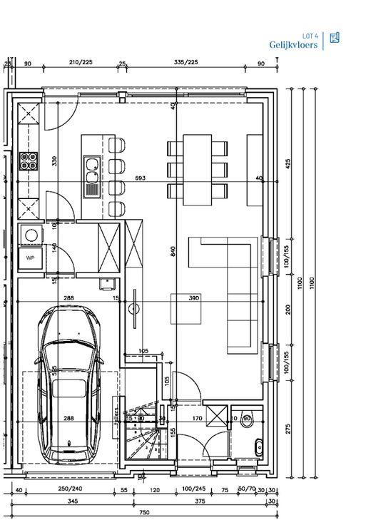
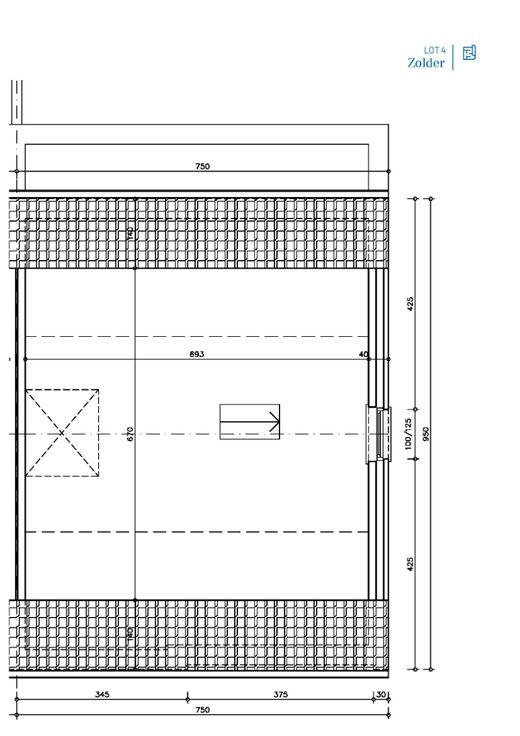
Stap binnen in de serene pracht van een landelijke halfopen nieuwbouwwoning, harmonieus gelegen op een zuidwest-georiënteerd perceel in een serene verkaveling. Deze betoverende woning, compleet met een inpandige garage, biedt niet alleen een rustige omgeving maar ook een perfecte balans tussen modern comfort en landelijke charme. Met 3 slaapkamers biedt deze woning voldoende ruimte voor een gezinsleven, terwijl de optionele vaste trap naar de zolder de mogelijkheid biedt voor een optionele 4e slaapkamer. Deze energiezuinige BEN-woning is uitgerust met geavanceerde technologieën, waaronder een warmtepomp, vloerverwarming op het gelijkvloers en de verdieping, ventilatie type D met warmterecuperatie, een regenwaterput van 10.000L, zonnepanelen en meer. De zuidwestelijke oriëntatie van het perceel zorgt voor een overvloed aan natuurlijk licht en biedt een prachtige omgeving voor ontspanning en entertainment. Voor meer informatie en om deze droomwoning te ontdekken, neem contact op met Ewout via 0497 588 888 of stuur een e-mail naar contact@huysmanbouw.be. Laat ons samen de deur openen naar jouw nieuwe thuis.
Renovatieplicht: onbekend