Te huur Duplex

Beschrijving van   

Vergelijk realty's

Te huur Duplex

Duplex Duplex Duplex Duplex Duplex Duplex Duplex Duplex
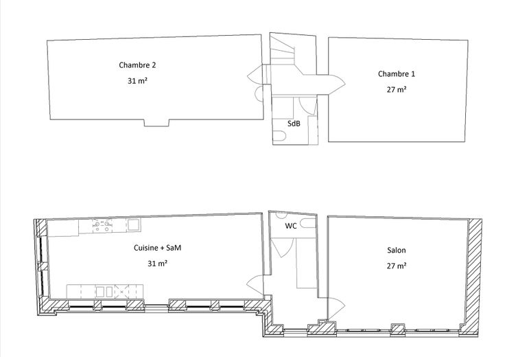
Dépendance de 135m² très lumineuse, entièrement réaménagée, donnant sur une cour privée et sécurisée. Rez: hall d’entrée avec WC et lave main ; salon de 27m² avec plancher chêne ; Cuisine équipée – salle à manger de 31m² , sol en dallage imitation bois, cuisinière gaz, hotte, four à convection, double évier, lave-vaisselle, emplacement pour lave-linge et sèche-linge avec évacuation extérieure. Etage : 1ère chambre de 27m², la seconde, de 31m² est mansardée et équipée d’un lavabo. Planchers en chêne. La salle de bain comprend un lavabo double, une douche et un WC. Très bonne isolation, climatisation réversible, ventilation double flux, garantie locative de 2 mois. Pour personnes calmes. Renseignements 0497 87 46 43 (agences s'abstenir, merci) Sombreffe 5140
Type vastgoed Appartement
Prijs 1.100
Bewoonbare opp. 135
Aantal slaapkamers 2