Te koop Huis

Beschrijving van   

Vergelijk realty's

Te koop Huis

Huis Huis Huis Huis Huis Huis Huis Huis Huis Huis Huis Huis Huis Huis Huis Huis Huis Huis
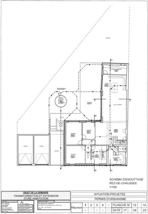
Ensemble immobilier comprenant terrain + maison en gros œuvre ouvert + 2 garages, l'ensemble situé à proximité des facilités comprenant: Terrain d'une superficie de 3 ares 80 centiares , 2 garages indépendants dont 1 loué 60€/mois - Permis octroyé pour la transformation de l'habitation existante en une habitation 2ch + dressing + grenier (voir photos et plans) - Habitation actuellement en GO ouvert (PEB label G 690 kwh/m².an numéro 20211229010898) - RC MODESTE - Libre à l'acte 85.000€ pour l'ensemble (Sauf Offre supérieure)
Type vastgoed Huis
Prijs 85.000
Bewoonbare opp. 110
Aantal slaapkamers 2
Aantal badkamers 1