Te koop Huis

Beschrijving van   

Vergelijk realty's

Te koop Huis

Huis Huis Huis Huis Huis Huis Huis Huis Huis Huis Huis Huis Huis Huis Huis Huis Huis Huis Huis Huis Huis Huis Huis Huis Huis Huis Huis Huis Huis
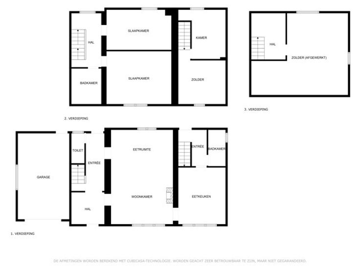
Check de virtuele tour en attesten op www.N3vastgoed.be. DEELS GERENOVEERDE VRIJSTAANDE WONING MET ZONNEPANELEN, DUBBEL GLAS, CV AARDGAS, 2 BADKAMERS EN 3 SLAAPKAMERS, UNIEK GELEGEN MIDDEN OP EEN PERCEEL VAN 13A 12CA NABIJ HET CENTRUM VAN HOEGAARDEN. Enkele troeven: 10 zonnepanelen - inbouwcassette op aardgas in de leefruimte - CV aardgas Radson 1993 - PVC ramen dubbel glas - vernieuwde elektriciteit met een paar opmerkingen (zie het keuringsattest op www.N3vastgoed.be)- 2 vernieuwde badkamers (één op het gelijkvloers met een douche en één op de verdieping met een ligbad) - aparte garage met een automatische sectionaalpoort - 3 slaapkamers - unieke ligging midden op een perceel van 13a 12ca (zie het kadastraal plan op www.N3vastgoed.be) - op 5 minuutjes rijden van het gemeenteplein van Hoegaarden - P- en G-score D - ontkalker - EPC 535 kWh/m²-label F (renovatieplicht van toepassing) - ... De indeling bestaat op het gelijkvloers uit de inkomhal met apart toilet, de leefruimte, keuken, badkamer 1 en de achterinkomhal. Op de eerste verdieping zijn er dan nog 2 slaapkamers, badkamer 2 en de nachthal met een vaste trap naar slaapkamer 3. Verder beschikt de woning nog over een kelder en een zolder. In de aangelegde tuin bevinden zich nog een aparte garage, een beklinkerde oprit met een smeedijzeren poort, een terras en een buitenberging. Voor het inplannen van een vrijblijvende bezichtiging
Type vastgoed Huis
Prijs 310.000
Bewoonbare opp. 150
Aantal slaapkamers 3
Aantal badkamers 2